Sold Prior | Lot 103

68 - 76 Central Drive, Blackpool, Lancashire, FY1 5QD

Sold Prior

  • Residential Development
  • 23 Bedrooms
  • Tenure: Freehold

Call the team on 020 7625 9007 for more information

Auction Date

Wed 10/02/2021

Auction Time

12:00

Auction Venue

Live Stream

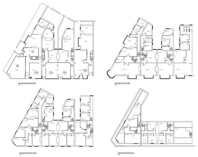
A Vacant Parade of Mixed Use Buildings Offered With Planning Permission for Conversion to Provide 13 Residential Units (10 x Two Bedrooms & 3 x One Bedrooms)

The properties comprises four adjoining mixed use buildings arranged over ground and three upper floors.

Tenure

Freehold

Location

The property is situated in the heart of Blackpool within walking distance of the town centre and the beach. Transport links are provided by Blackpool North and Blackpool South rail stations.

Accommodation

68 Central Drive - ground floor lock-up shop 70 Central Drive - 25 room maisonette over four floors 70A Central Drive - ground floor lock-up shop 72 Central Drive - 16 room maisonette over four floors 72A/74A Central Drive - double fronted lock-up shop 74 Central Drive - 17 room maisonette over four floors 76 Central Drive - 8 room maisonette over three floors 76A Central Drive - ground floor lock-up shop

Planning

Blackpool Council granted the following lapsed planning permission (Ref. No: 18/0596) on the 4th January 2019: 'External alterations to Central Drive elevation, provision of bin and cycle stores to rear and use of premises as altered at part ground floor and upper floors as 12 self-contained permanent flats and 1 maisonette.'

Services

Interested parties are requested to make their own enquiries to the relevant authorities as to the availability of services.

Important Notice to Prospective Buyers:

We draw your attention to the Special Conditions of Sale within the Legal Pack, referring to other charges in addition to the purchase price which may become payable. Such costs may include Search Fees, reimbursement of Sellers costs and Legal Fees, and Transfer Fees amongst others.

Additional Fees

Administration Charge - Purchasers will be required to pay an administration fee of £1,800 inc VAT

Disbursements - Please see the legal pack for any disbursements listed that may become payable by the purchaser on completion.

View Larger Map

Disclaimer: The map preview provided above is for general guidance only and may not accurately reflect the exact location or surrounding buildings. Prospective buyers and interested parties are strongly advised to independently verify the precise location and surroundings before bidding.