Withdrawn | Lot 21

8A Streamdale, Abbey Wood, London, SE2 0PD

Withdrawn

  • Terraced House
  • 2 Bedrooms
  • Tenure: Freehold

Call the team on 020 7625 9007 for more information

Auction Date

Wed 10/02/2021

Auction Time

12:00

Auction Venue

Live Stream

Viewing Times:

Tue 19 Jan

14:00-14:45

Tue 26 Jan

15:00-16:00

Thu 28 Jan

15:00-16:00

Tue 2 Feb

15:00-16:00

Thu 4 Feb

15:30-16:00

Tue 9 Feb

15:30-16:00

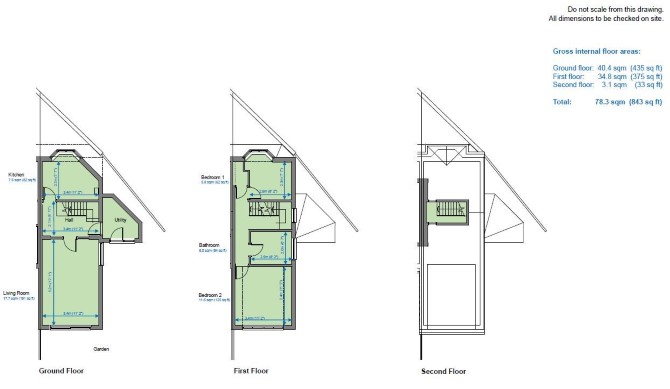
A Vacant Two Bedroom End of Terrace House

The property comprises a two bedroom mid-terrace house arranged over ground and first floors.

Tenure

Freehold

Location

The property is situated in a cul de sac close to local shops and amenities. The open spaces of Bostall Woods are within close proximity. Transport links are provided by both Plumstead and Abbey Wood rail stations.

Accommodation

Ground Floor Reception Room Kitchen (Not Fitted) WC First Floor Two Bedrooms Bathroom Second Floor Ample Eave Storage Space

Exterior

The property benefits from a rear garden.

Prospective buyers are advised that a retrospective planning application on the property for the conversion into two houses is currently under appeal. Ref: APP/E5330/W/20/3260115

Services

Interested parties are requested to make their own enquiries to the relevant authorities as to the availability of services.

Important Notice to Prospective Buyers:

We draw your attention to the Special Conditions of Sale within the Legal Pack, referring to other charges in addition to the purchase price which may become payable. Such costs may include Search Fees, reimbursement of Sellers costs and Legal Fees, and Transfer Fees amongst others.

Additional Fees

Administration Charge - Purchasers will be required to pay an administration fee of £1,800 inc VAT

Disbursements - Please see the legal pack for any disbursements listed that may become payable by the purchaser on completion.

View Larger Map

Disclaimer: The map preview provided above is for general guidance only and may not accurately reflect the exact location or surrounding buildings. Prospective buyers and interested parties are strongly advised to independently verify the precise location and surroundings before bidding.