For Sale By Auction | 12:00, 10 February 2021 | Lot 15

375 Lewisham High Street, Lewisham, London, SE13 6NZ

Sold £262,000

  • Commercial Property
  • Tenure: Freehold

Call the team on 020 7625 9007 for more information

Auction Date

Wed 10/02/2021

Auction Time

12:00

Auction Venue

Live Stream

Viewing Times:

Tue 26 Jan

12:00-12:30

Thu 28 Jan

12:00-12:30

Tue 2 Feb

12:00-12:30

Thu 4 Feb

12:00-12:30

Tue 9 Feb

12:00-12:30

A Mixed Use Mid Terrace Building (Both Flats and Office are Sold Off on Long Leases) with the Ground Floor Commercial Unit Let on a 12 year FRI Lease (Lock-Up Shop). Producing a Combined Income of £14,000 Per Annum

Tenure

Freehold

Location

The property is situated in the South East London area of Lewisham amongst local shops and amenities. The open spaces of Ladywell Fields are easily accessible. Transport links are provided by Ladywell rail station.

Accommodation

Ground Floor Lock-Up Shop GIA - 94 sq m Sold Off Upper Parts Flat A 125 year lease from 1986 Flat B 125 year lease from 1986 Office C 999 year lease from 2021

Planning

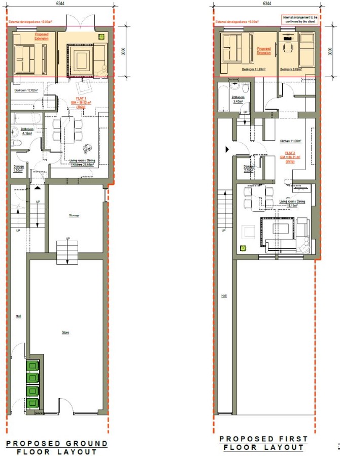
A planning application has been submitted to Lewisham Borough Council for the erection of a 2 storey rear extension to create 19 sq m of additional space on the ground and first floors under the temporary planning reference number: PP09406621v1YPB.

Rent reviews for the commercial unit due in 2016 and 2020 are outstanding. The seller has appointed a commercial surveyor to start the rent review process. The letter of appointment will be available in the legal pack.

Services

Interested parties are requested to make their own enquiries to the relevant authorities as to the availability of services.

Important Notice to Prospective Buyers:

We draw your attention to the Special Conditions of Sale within the Legal Pack, referring to other charges in addition to the purchase price which may become payable. Such costs may include Search Fees, reimbursement of Sellers costs and Legal Fees, and Transfer Fees amongst others.

Additional Fees

Administration Charge - Purchasers will be required to pay an administration fee of £1,800 inc VAT

Disbursements - Please see the legal pack for any disbursements listed that may become payable by the purchaser on completion.

View Larger Map

Disclaimer: The map preview provided above is for general guidance only and may not accurately reflect the exact location or surrounding buildings. Prospective buyers and interested parties are strongly advised to independently verify the precise location and surroundings before bidding.