For Sale By Auction | 12:00, 10 February 2021 | Lot 36

Land to Rear of 1 Melbourne Close, Orpington, Kent, BR6 0BJ

Sold £350,000

  • Land
  • 4 Bedrooms
  • Tenure: Freehold

Call the team on 020 7625 9007 for more information

Auction Date

Wed 10/02/2021

Auction Time

12:00

Auction Venue

Live Stream

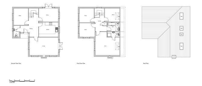
A Vacant Development Site Measuring Approximately 442 sq m (4,757 sq ft) Offered With Planning Permission for Construction of a Four Bedroom Detached House

The site comprises a roughly square shaped site measures approximately 442 sq m (4,757 sq ft). Offered with direct access and frontage to Bicknor Road.

Tenure

Freehold

Location

The development site is at rear of 1 Melbourne Close and access will be from Bicknor Road, BR6 0TS. The site is situated on an established residential cul-de-sac and close to local shops and amenities. The open spaces of Poverest Park are within easy reach. Transport links are provided by Orpington rail station.

Planning

Bromley Borough Council granted the following planning permission on appeal (ref: 17/01073/FULL1) on 12th September 2018: 'Single detached dwelling to the rear of existing property at no. 1 Melbourne Close.' Alternative new plans have been submitted to Bromley Council on the 14th January 2021 for 2 x semi-detached houses under the temporary planning reference: P09417694v1HMU.

Proposed Accommodation

Ground Floor Two Reception Rooms Study Kitchen WC First Floor Four Bedrooms (One with En-Suite) Bathroom

Services

Interested parties are requested to make their own enquiries to the relevant authorities as to the availability of services.

Important Notice to Prospective Buyers:

We draw your attention to the Special Conditions of Sale within the Legal Pack, referring to other charges in addition to the purchase price which may become payable. Such costs may include Search Fees, reimbursement of Sellers costs and Legal Fees, and Transfer Fees amongst others.

Additional Fees

Administration Charge - Purchasers will be required to pay an administration fee of £1,800 inc VAT

Disbursements - Please see the legal pack for any disbursements listed that may become payable by the purchaser on completion.

View Larger Map

Disclaimer: The map preview provided above is for general guidance only and may not accurately reflect the exact location or surrounding buildings. Prospective buyers and interested parties are strongly advised to independently verify the precise location and surroundings before bidding.