For Sale By Auction | 12:00, 10 February 2021 | Lot 60

28 Milton Road, Swindon, Wiltshire, SN1 5JA

Sold £332,500

  • Commercial Property
  • 8 Bedrooms

Call the team on 020 7625 9007 for more information

Auction Date

Wed 10/02/2021

Auction Time

12:00

Auction Venue

Live Stream

Viewing Times:

Sat 30 Jan

10:00-10:30

Thu 4 Feb

15:00-15:30

A Vacant Freehold Four Storey Office Building Offered with Full Planning Permission for Conversion to Provide 8 x Self-Contained Studio Flats

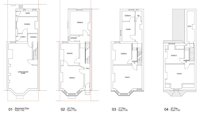
The property comprises a mid terrace office building arranged over lower ground, ground and two upper floors. GIA 218 sq m (2,349 sq ft)

Location

The property is situated in Swindon town centre close to local shops and amenities including The Brunel Shopping Centre. The open spaces of The Park are within close proximity. Transport links are provided by Swindon rail station.

Accommodation

Lower Ground Floor Office Room, Kitchen Ground Floor Three Office Rooms First Floor Two Office Rooms, Kitchen, W/C Second Floor Two Office Rooms

Planning

Swindon Borough Council granted the following planning permission (ref: S/PO2R/20/1043) on 23rd September 2020: 'Prior Approval Notification for the change of use of Office (Class B1(a) to 8 no. Residential Units (Class C3.)' A Further Planning Application has been approved (ref: S/20/1553) on 26th January 2021: 'Erection of an L-shaped rear dormer, creation of lightwell to the front of the property, a boundary wall with iron railings and installation of new windows.'

Proposed Accommodation

8 x Self-Contained Studio Flats (arranged as two flats on each floor)

Swindon Borough Council has shown an interest to rent all studios after completed works at £500pcm which would create income of £48,000pa (refer to the email in the legal pack).

Services

Interested parties are requested to make their own enquiries to the relevant authorities as to the availability of services.

Important Notice to Prospective Buyers:

We draw your attention to the Special Conditions of Sale within the Legal Pack, referring to other charges in addition to the purchase price which may become payable. Such costs may include Search Fees, reimbursement of Sellers costs and Legal Fees, and Transfer Fees amongst others.

Additional Fees

Administration Charge - Purchasers will be required to pay an administration fee of £1,800 inc VAT

Disbursements - Please see the legal pack for any disbursements listed that may become payable by the purchaser on completion.

View Larger Map

Disclaimer: The map preview provided above is for general guidance only and may not accurately reflect the exact location or surrounding buildings. Prospective buyers and interested parties are strongly advised to independently verify the precise location and surroundings before bidding.