For Sale By Auction | 12:00, 30 March 2021 | Lot 13

94-98 Merton High Street, South Wimbledon, London, SW19 1BD

*Guide | £2,200,000+ (plus fees)

  • Residential Development
  • 9 Bedrooms
  • Tenure: The site is held on three separate Freehold Titles

Call the team on 020 7625 9007 for more information

Auction Date

Tue 30/03/2021

Auction Time

12:00

Auction Venue

Live Stream

Viewing Times:

Tue 16 Mar

12:00-13:00

Thu 18 Mar

12:00-13:00

Tue 23 Mar

12:00-13:00

Thu 25 Mar

12:00-13:00

Sat 27 Mar

12:00-13:00

Mon 29 Mar

12:00-13:00

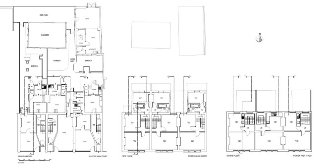
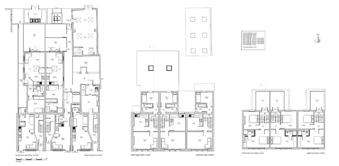
A Substantial Development Opportunity Currently Arranged as Three Mixed Use Buildings, a Detached Office Building and a Row of Three Garages Offered with Planning Submitted for Conversion to Provide 9 Self-Contained Units (Potential for Further Development, Subject to Obtaining all Consents)

The site comprises of three mid-terrace mixed use buildings similarly arranged to provide a ground floor commercial unit, and a three bedroom split level maisonette arranged over ground, first and second floors in each building.

Tenure

The site is held on three separate Freehold Titles

Location

The property is situated in the sought after South West London area of Wimbledon close to local shops and amenities. Transport links are provided by Wimbledon rail station (Overground) and South Wimbledon (Northern Line) underground station.

Accommodation

94/96/98 Merton High Street Ground Floor 3 x (B1) Offices 2 x Self-contained Studios with gardens 1 x Kitchen/Diner with access to garden (Potential for further development) First Floor 3 x Three Bedrooms 3 x Bathrooms Second Floor 3 x Reception Rooms 3 x Kitchens Building on Hotham Road Mews Ground Floor 1 x Detached Office, Kitchenette & WC (Potential for further development)

Exterior

The properties benefits from a block of three garages.

Tenancy

94a and 96a Merton High Street are subject to Assured Shorthold Tenancies, please refer to the legal pack for further details.

Services

Interested parties are requested to make their own enquiries to the relevant authorities as to the availability of services.

Important Notice to Prospective Buyers:

We draw your attention to the Special Conditions of Sale within the Legal Pack, referring to other charges in addition to the purchase price which may become payable. Such costs may include Search Fees, reimbursement of Sellers costs and Legal Fees, and Transfer Fees amongst others.

Additional Fees

Administration Charge - Purchasers will be required to pay an administration fee of £1,800 inc VAT

Disbursements - Please see the legal pack for any disbursements listed that may become payable by the purchaser on completion.

View Larger Map

Disclaimer: The map preview provided above is for general guidance only and may not accurately reflect the exact location or surrounding buildings. Prospective buyers and interested parties are strongly advised to independently verify the precise location and surroundings before bidding.