For Sale By Auction | 12:00, 06 May 2021 | Lot 60A

28 Frank Towell Court, Glebelands Road, Feltham, Middlesex, TW14 9BN

Sold £166,000

  • Flat
  • 2 Bedrooms
  • Tenure: Leasehold. The property is held on a 125 year lease from 29th July 1985 (thus approximately 89 years unexpired).

Call the team on 020 7625 9007 for more information

Auction Date

Thu 06/05/2021

Auction Time

12:00

Auction Venue

Live Stream

Viewing Times:

Sat 24 Apr

12:00-13:00

Tue 27 Apr

12:00-13:00

Thu 29 Apr

12:00-13:00

Sat 1 May

12:00-13:00

Tue 4 May

12:00-13:00

A Two Bedroom Second Floor Flat Subject to an Assured Shorthold Tenancy Producing £12,000 Per Annum

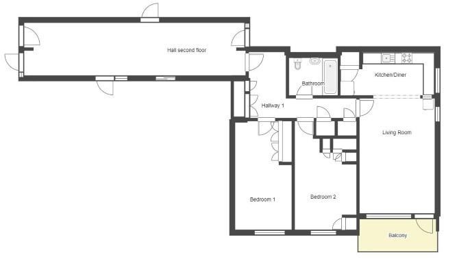
The property comprises a two bedroom second floor flat situated within a purpose built block arranged over ground and ten upper floors.

Tenure

Leasehold. The property is held on a 125 year lease from 29th July 1985 (thus approximately 89 years unexpired).

Location

The property is situated on a residential road close to local shops and amenities. Numerous green open spaces are also within close proximity. Transport links are provided by Feltham rail station.

Accommodation

Second Floor Reception Room Kitchen Two Bedrooms Bathroom

Exterior

The property benefits from a balcony.

Services

Interested parties are requested to make their own enquiries to the relevant authorities as to the availability of services.

Important Notice to Prospective Buyers:

We draw your attention to the Special Conditions of Sale within the Legal Pack, referring to other charges in addition to the purchase price which may become payable. Such costs may include Search Fees, reimbursement of Sellers costs and Legal Fees, and Transfer Fees amongst others.

Additional Fees

Administration Charge - Purchasers will be required to pay an administration fee of £1,800 inc VAT

Disbursements - Please see the legal pack for any disbursements listed that may become payable by the purchaser on completion.

View Larger Map

Disclaimer: The map preview provided above is for general guidance only and may not accurately reflect the exact location or surrounding buildings. Prospective buyers and interested parties are strongly advised to independently verify the precise location and surroundings before bidding.