For Sale By Auction | 10:30, 27 October 2021 | Lot 38A

28-30 High Street, Purley, Surrey, CR8 2AA

*Guide | £1,150,000+ (plus fees)

  • Residential Development
  • 2 Bedrooms
  • Tenure: Freehold

Call the team on 020 7625 9007 for more information

Auction Date

Wed 27/10/2021

Auction Time

10:30

Auction Venue

Live Stream

Viewing Times:

Thu 21 Oct

13:00-13:30

Mon 25 Oct

12:00-12:30

A Vacant Restaurant with Ancillary Accommodation Above. Offered with Pre-Application Planning Advice for Redevelopment of the Existing Building to Create a Seven Storey Building Comprising 39 Co-Living Units (Subject to Obtaining all Relevant Consents).

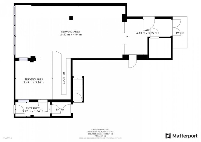
The property comprises a former ground floor restaurant measuring 91 sq m with first floor ancillary accommodation measuring 62 sq m.

Tenure

Freehold

Location

The property is situated on a popular high street in the heart of Purley. Transport links are provided by Purley rail station which is just a short walk away.

Accommodation

Ground Floor Entrance Large Serving Area Further Serving Area Hall Patio First Floor Four Rooms Bathroom Laundry Room

Exterior

The property benefits from a rear patio.

Proposed Accommodation

There is pre-application advice surrounding the proposed development of a 7 storey building that would provide 39 rooms.

Services

Interested parties are requested to make their own enquiries to the relevant authorities as to the availability of services.

Important Notice to Prospective Buyers:

We draw your attention to the Special Conditions of Sale within the Legal Pack, referring to other charges in addition to the purchase price which may become payable. Such costs may include Search Fees, reimbursement of Sellers costs and Legal Fees, and Transfer Fees amongst others.

Additional Fees

Administration Charge - Purchasers will be required to pay an administration fee of £1,800 inc VAT

Disbursements - Please see the legal pack for any disbursements listed that may become payable by the purchaser on completion.

View Larger Map

Disclaimer: The map preview provided above is for general guidance only and may not accurately reflect the exact location or surrounding buildings. Prospective buyers and interested parties are strongly advised to independently verify the precise location and surroundings before bidding.