For Sale By Auction | 9:45, 20 April 2022 | Lot 61A

61 & 61B Fairleigh, Sheffield, South Yorkshire, S2 1LB

Sold £452,500

  • Detached House
  • 12 Bedrooms
  • Tenure: Leasehold. The property is held on a 200 year lease from 24 October 1927 (thus approximately 105 years unexpired).

Call the team on 020 7625 9007 for more information

Auction Date

Wed 20/04/2022

Auction Time

9:45

Auction Venue

Live Stream

Viewing Times:

Fri 8 Apr

16:30-17:00

Mon 11 Apr

16:30-17:00

Sat 16 Apr

12:00-12:30

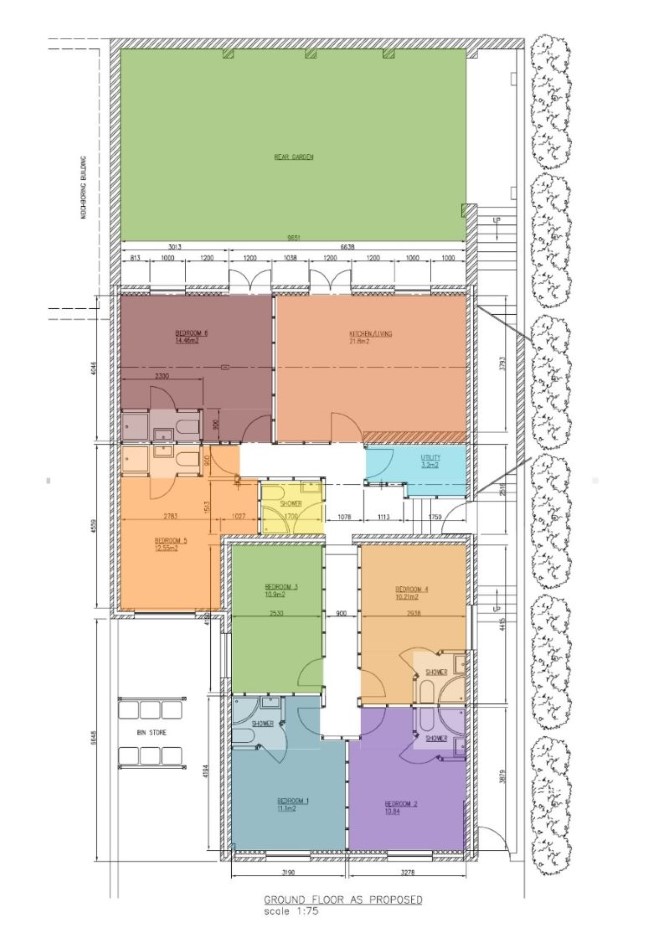
A Substantial Twelve Bedroom Detached Fully Licensed HMO Producing a Combined Income of £63,360 Per Annum

The property comprises a twelve bedroom detached HMO arranged over ground and first floors.

Tenure

Leasehold. The property is held on a 200 year lease from 24 October 1927 (thus approximately 105 years unexpired).

Location

The property is situated on a residential road close to the local shops and amenities. The open spaces of Manor Fields Park are within easy reach. Transport links are provided by Sheffield rail station.

Accommodation

Ground Floor Reception/Kitchen 5 x Bedrooms with En-suite 1 x Bedroom Bathroom First Floor Reception/Kitchen 4 x Bedrooms with En-suite 2 x Bedroom Bathroom

Exterior

The property benefits from a private rear garden and off street parking.

Tenancy

The property is subject to HMO individual Tenancies at a combined rent of £63,360 per annum (Please refer to the legal pack for the Tenancy Schedule).

The property is held on 2 x HMO Licences as the property provides a ground floor 6 Bed HMO and a first floor 6 Bed HMO

Services

Interested parties are requested to make their own enquiries to the relevant authorities as to the availability of services.

Important Notice to Prospective Buyers:

We draw your attention to the Special Conditions of Sale within the Legal Pack, referring to other charges in addition to the purchase price which may become payable. Such costs may include Search Fees, reimbursement of Sellers costs and Legal Fees, and Transfer Fees amongst others.

Additional Fees

Administration Charge - Purchasers will be required to pay an administration fee of £1,800 inc VAT

Disbursements - Please see the legal pack for any disbursements listed that may become payable by the purchaser on completion.

View Larger Map

Disclaimer: The map preview provided above is for general guidance only and may not accurately reflect the exact location or surrounding buildings. Prospective buyers and interested parties are strongly advised to independently verify the precise location and surroundings before bidding.