Withdrawn | Lot 36

24 Court Yard, Eltham, London, SE9 5PZ

Withdrawn

  • Block of Apartments
  • 10 Bedrooms
  • Tenure: Freehold

Call the team on 020 7625 9007 for more information

Auction Date

Wed 25/05/2022

Auction Time

9:45

Auction Venue

Live Stream

Viewing Times:

Mon 9 May

11:45-12:15

Wed 11 May

11:45-12:15

Fri 13 May

11:45-12:15

Tue 17 May

11:45-12:15

Thu 19 May

11:45-12:15

Mon 23 May

11:45-12:15

Mon 6 Jun

12:00-12:30

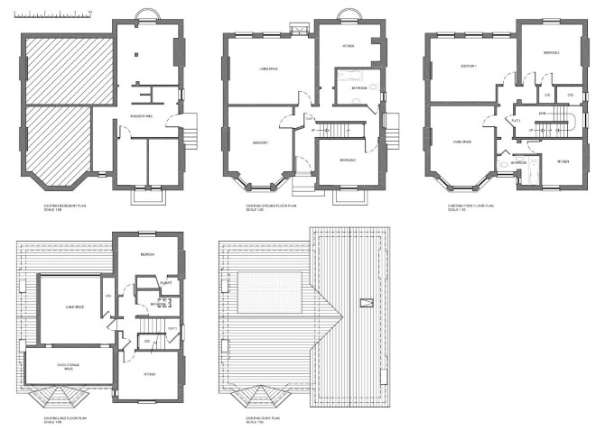
A Freehold Building arranged as Three Self-Contained Flats Offered With Planning Permission for Conversion to Provide Seven Self-Contained Flats (3 x Two Bed & 4 x One Bed)

The property comprises three self-contained flats (2 x two bedrooms & 1 x large one bedroom) situated within a detached building arranged over lower ground and three upper floors.

Tenure

Freehold

Location

The property is situated off the high street in the South East London area of Eltham close to local shops and amenities. The open spaces of Avery Hill Park are next to the property. Transport links are provided by Eltham & Mottingham rail station.

Accommodation

Lower Ground Floor Basement Area Ground Floor Two Bedroom Flat First Floor Two Bedroom Flat Second Floor One Bedroom Flat

Exterior

The property benefits from a large off street parking area and a rear garden.

Planning

Greenwich Borough Council granted the following planning permission (ref: 18/3287/F) on 27th February 2019: 'Construction of a part 2/part 3-storey rear extension, including basement conversion and extension with front, side and rear light wells to facilitate the creation of 7 self-contained flats (4 new units).'

Proposed Accommodation

Lower Ground Floor 1 x Two Bedroom Flat (G.I.A 70 sq m / 753 sq ft) 1 x One Bedroom Flat (G.I.A 56 sq m / 602 sq ft) Ground Floor 1 x Two Bedroom Flat (G.I.A 70 sq m / 753 sq ft) 1 x One Bedroom Flat (G.I.A 52 sq m / 559 sq ft) First Floor 1 x Two Bedroom Flat (G.I.A 61 sq m / 656 sq ft) 1 x One Bedroom Flat (G.I.A 38 sq m / 409 sq ft) Second Floor 1 x One Bedroom Flat (existing/unchanged)

Tenancy

Flat 3 (top floor flat) is subject to an Assured Shorthold Tenancy for a term of 12 months commencing June 2021 at a rent of £1,100 per calendar month (notice has been served).

Building works commenced in December 2021 and a 5 day notice was submitted by London building control to confirm commencement of works

Services

Interested parties are requested to make their own enquiries to the relevant authorities as to the availability of services.

Important Notice to Prospective Buyers:

We draw your attention to the Special Conditions of Sale within the Legal Pack, referring to other charges in addition to the purchase price which may become payable. Such costs may include Search Fees, reimbursement of Sellers costs and Legal Fees, and Transfer Fees amongst others.

Additional Fees

Administration Charge - Purchasers will be required to pay an administration fee of £1,800 inc VAT

Disbursements - Please see the legal pack for any disbursements listed that may become payable by the purchaser on completion.

View Larger Map

Disclaimer: The map preview provided above is for general guidance only and may not accurately reflect the exact location or surrounding buildings. Prospective buyers and interested parties are strongly advised to independently verify the precise location and surroundings before bidding.