For Sale By Auction | 9:45, 25 May 2022 | Lot 16

120 Doddsfield Road, Slough, Berkshire, SL2 2AJ

Sold £377,000

  • Semi-Detached House
  • 3 Bedrooms
  • Tenure: Freehold

Call the team on 020 7625 9007 for more information

Auction Date

Wed 25/05/2022

Auction Time

9:45

Auction Venue

Live Stream

Viewing Times:

Thu 12 May

12:00-12:30

Sat 14 May

12:00-12:30

Mon 16 May

12:00-12:30

Wed 18 May

12:00-12:30

Fri 20 May

12:00-12:30

Sat 21 May

12:00-12:30

Tue 24 May

12:00-12:30

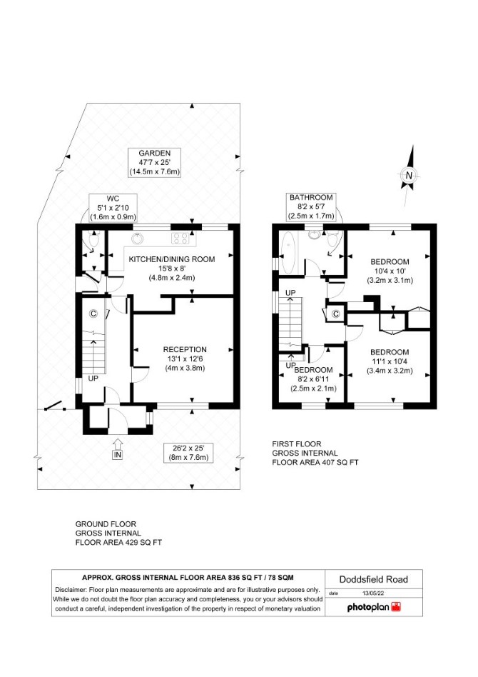
A Vacant Three Bedroom Semi Detached House

The property comprises a three bedroom semi detached house arranged over ground and first floor levels.

Tenure

Freehold

8 Week Completion Available

Location

The property is situated on a residential road close to local shops and amenities. The open spaces of Kennedy Park are within easy reach. Transport links are provided by Burnham rail station.

Accommodation

Ground Floor Reception Room Kitchen WC First Floor Three Bedrooms Bathroom

Exterior

The property benefits from a rear garden and off street parking.

Services

Interested parties are requested to make their own enquiries to the relevant authorities as to the availability of services.

Important Notice to Prospective Buyers:

We draw your attention to the Special Conditions of Sale within the Legal Pack, referring to other charges in addition to the purchase price which may become payable. Such costs may include Search Fees, reimbursement of Sellers costs and Legal Fees, and Transfer Fees amongst others.

Additional Fees

Administration Charge - Purchasers will be required to pay an administration fee of £1,800 inc VAT

Disbursements - Please see the legal pack for any disbursements listed that may become payable by the purchaser on completion.

View Larger Map

Disclaimer: The map preview provided above is for general guidance only and may not accurately reflect the exact location or surrounding buildings. Prospective buyers and interested parties are strongly advised to independently verify the precise location and surroundings before bidding.