Sold Prior | Lot 25

1B Cloisters House, 8 Battersea Park Road, Wandsworth, London, SW8 4BG

Sold Prior

  • Flat
  • 2 Bedrooms
  • Tenure: Long Leasehold. The property is held on a 999 year lease from 29/09/1987.

Call the team on 020 7625 9007 for more information

Auction Date

Wed 29/06/2022

Auction Time

9:45

Auction Venue

Live Stream

Viewing Times:

Tue 14 Jun

17:15-17:45

Thu 16 Jun

17:15-17:45

Mon 20 Jun

17:15-17:45

Wed 22 Jun

17:15-17:45

Fri 24 Jun

17:15-17:45

Sat 25 Jun

10:00-10:30

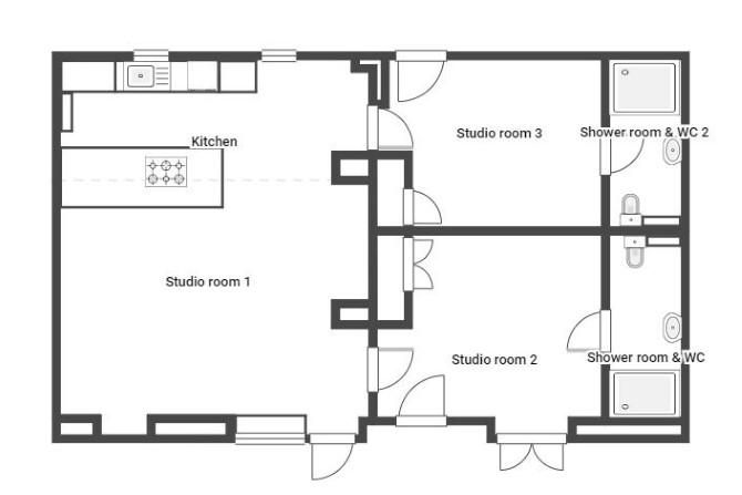
A Vacant Lower Ground Floor Two Bedroom Flat

The property comprises a lower ground floor two bedroom flat situated within a gated development arranged over lower ground, ground, first and second floors. The property benefits from its own private entrance.

Tenure

Long Leasehold. The property is held on a 999 year lease from 29/09/1987.

Location

The property is situated on a residential road close to local shops and amenities. The open spaces of Battersea Park are within easy reach. Transport links are provided by Battersea Power underground station (Northern line) and Battersea Park rail station.

Accommodation

Lower Ground Floor Reception Room Kitchen Two Bedrooms (both with en-suites)

Exterior

The property benefits from one allocated parking space and a patio area.

Services

Interested parties are requested to make their own enquiries to the relevant authorities as to the availability of services.

Important Notice to Prospective Buyers:

We draw your attention to the Special Conditions of Sale within the Legal Pack, referring to other charges in addition to the purchase price which may become payable. Such costs may include Search Fees, reimbursement of Sellers costs and Legal Fees, and Transfer Fees amongst others.

Additional Fees

Administration Charge - Purchasers will be required to pay an administration fee of £1,800 inc VAT

Disbursements - Please see the legal pack for any disbursements listed that may become payable by the purchaser on completion.

View Larger Map

Disclaimer: The map preview provided above is for general guidance only and may not accurately reflect the exact location or surrounding buildings. Prospective buyers and interested parties are strongly advised to independently verify the precise location and surroundings before bidding.