For Sale By Auction | 9:00, 14 September 2022 | Lot 8

Ground Floor Flat, 92 Laleham Road, Catford, London, SE6 2HX

Sold £306,000

  • Flat
  • 2 Bedrooms
  • Tenure: Leasehold. The property will be sold with a new 999 year lease.

Call the team on 020 7625 9007 for more information

Auction Date

Wed 14/09/2022

Auction Time

9:00

Auction Venue

Live Stream

Viewing Times:

Wed 31 Aug

15:15-15:45

Fri 2 Sep

15:15-15:45

Sat 3 Sep

12:00-12:30

Tue 6 Sep

15:15-15:45

Thu 8 Sep

15:15-15:45

Sat 10 Sep

12:00-12:30

Mon 12 Sep

15:15-15:45

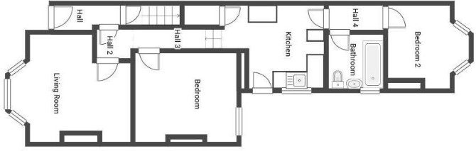
A Vacant Ground Floor Two Bedroom Flat

The property comprises a ground floor two bedroom flat situated within a mid terrace building arranged over ground and first floor levels.

Tenure

Leasehold. The property will be sold with a new 999 year lease.

8 Week Completion Available

Location

The property is situated on a residential road close to local shops and amenities. The open spaces of Mountsfield Park are within easy reach. Transport links are provided by Catford Bridge rail station.

Accommodation

Ground Floor Reception Room Kitchen Two Bedrooms Bathroom

Exterior

The property benefits from a private rear garden with direct access.

Services

Interested parties are requested to make their own enquiries to the relevant authorities as to the availability of services.

Important Notice to Prospective Buyers:

We draw your attention to the Special Conditions of Sale within the Legal Pack, referring to other charges in addition to the purchase price which may become payable. Such costs may include Search Fees, reimbursement of Sellers costs and Legal Fees, and Transfer Fees amongst others.

Additional Fees

Administration Charge - Purchasers will be required to pay an administration fee of £1,800 inc VAT

Disbursements - Please see the legal pack for any disbursements listed that may become payable by the purchaser on completion.

View Larger Map

Disclaimer: The map preview provided above is for general guidance only and may not accurately reflect the exact location or surrounding buildings. Prospective buyers and interested parties are strongly advised to independently verify the precise location and surroundings before bidding.