For Sale By Auction | 9:00, 14 September 2022 | Lot 20

8 Courtlands Avenue, Lee, London, SE12 8HZ

Sold £230,000

  • Flat
  • 2 Bedrooms
  • Tenure: Leasehold. The property is held on a 99 year lease, less three days from 5th July 1959 (thus approximately 35 years unexpired). A section 42 notice to extend the lease has been served on the freeholder, the rights of which will be assigned to the incoming buyer.

Call the team on 020 7625 9007 for more information

Auction Date

Wed 14/09/2022

Auction Time

9:00

Auction Venue

Live Stream

Viewing Times:

Wed 31 Aug

11:30-12:00

Fri 2 Sep

11:30-12:00

Sat 3 Sep

13:15-13:45

Tue 6 Sep

11:30-12:00

Thu 8 Sep

11:30-12:00

Sat 10 Sep

14:00-14:30

Mon 12 Sep

11:30-12:00

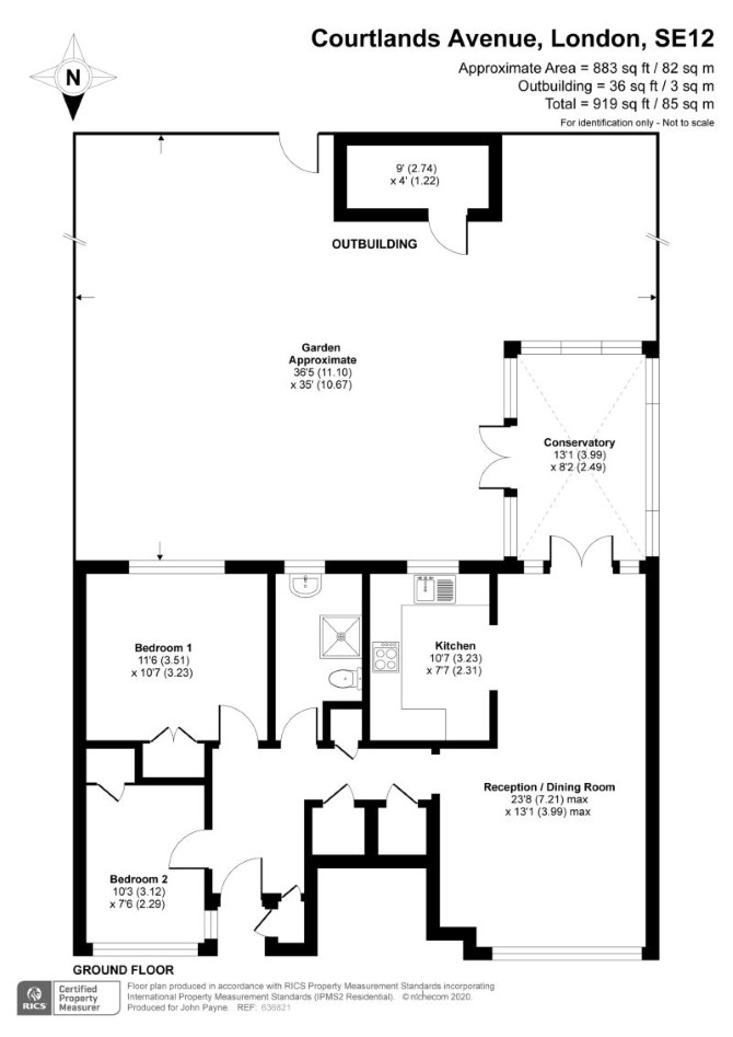
A Vacant Ground Floor Two Bedroom Maisonette

The property comprises a ground floor two bedroom maisonette situated within a purpose built block arranged over ground and two upper floors. The property benefits from a private entrance and rear access.

Tenure

Leasehold. The property is held on a 99 year lease, less three days from 5th July 1959 (thus approximately 35 years unexpired). A section 42 notice to extend the lease has been served on the freeholder, the rights of which will be assigned to the incoming buyer.

Location

The property is situated on a residential road close to local shops and amenities. The open spaces of Sutcliffe Park are within easy reach. Transport links are provided by Lee rail station.

Accommodation

Ground Floor Reception Room Kitchen Two Bedrooms Bathroom Conservatory

Exterior

The property benefits from a private rear garden with rear access and a garage.

Services

Interested parties are requested to make their own enquiries to the relevant authorities as to the availability of services.

Important Notice to Prospective Buyers:

We draw your attention to the Special Conditions of Sale within the Legal Pack, referring to other charges in addition to the purchase price which may become payable. Such costs may include Search Fees, reimbursement of Sellers costs and Legal Fees, and Transfer Fees amongst others.

Additional Fees

Administration Charge - Purchasers will be required to pay an administration fee of £1,800 inc VAT

Disbursements - Please see the legal pack for any disbursements listed that may become payable by the purchaser on completion.

View Larger Map

Disclaimer: The map preview provided above is for general guidance only and may not accurately reflect the exact location or surrounding buildings. Prospective buyers and interested parties are strongly advised to independently verify the precise location and surroundings before bidding.