For Sale By Auction | 9:00, 14 September 2022 | Lot 14

75 Goldingham Drive, Braintree, Essex, CM7 1BH

Sold £251,000

  • End of Terrace House
  • 3 Bedrooms
  • Tenure: Freehold

Call the team on 020 7625 9007 for more information

Auction Date

Wed 14/09/2022

Auction Time

9:00

Auction Venue

Live Stream

Viewing Times:

Thu 1 Sep

12:00-12:30

Sat 3 Sep

12:00-12:30

Wed 7 Sep

12:00-12:30

Sat 10 Sep

12:00-12:30

Tue 13 Sep

12:00-12:30

A Vacant Three Bedroom End of Terrace House

The property comprises a three bedroom end of terrace house arranged over ground and first floors.

Tenure

Freehold

8 Week Completion Available or Earlier if Required

Location

The property is situated on a residential road close to local shops and amenities. The open spaces of Goldingham Drive Park are within easy reach. Transport links are provided by Braintree Freeport rail station.

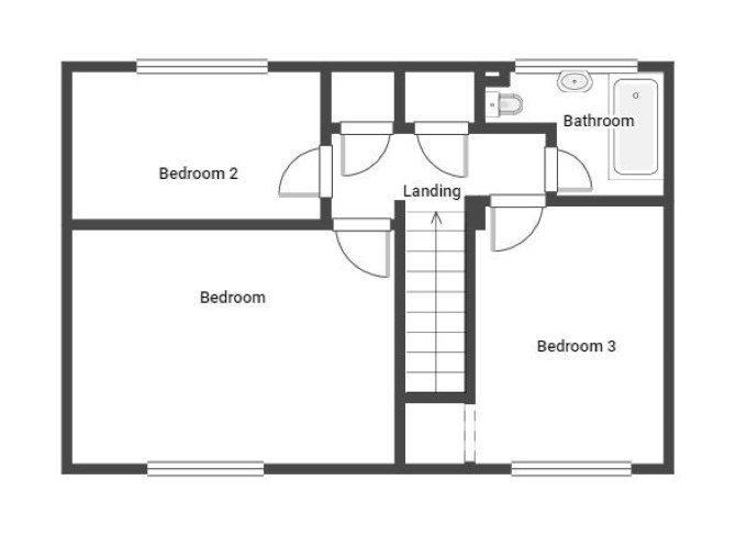
Accommodation

Ground Floor Two Reception Rooms Kitchen WC Store Room First Floor Three Bedrooms Bathroom

Exterior

The property benefits from both front and rear gardens.

Services

Interested parties are requested to make their own enquiries to the relevant authorities as to the availability of services.

Important Notice to Prospective Buyers:

We draw your attention to the Special Conditions of Sale within the Legal Pack, referring to other charges in addition to the purchase price which may become payable. Such costs may include Search Fees, reimbursement of Sellers costs and Legal Fees, and Transfer Fees amongst others.

Additional Fees

Administration Charge - Purchasers will be required to pay an administration fee of £1,800 inc VAT

Disbursements - Please see the legal pack for any disbursements listed that may become payable by the purchaser on completion.

View Larger Map

Disclaimer: The map preview provided above is for general guidance only and may not accurately reflect the exact location or surrounding buildings. Prospective buyers and interested parties are strongly advised to independently verify the precise location and surroundings before bidding.