For Sale By Auction | 9:00, 14 September 2022 | Lot 16

Flat 229 Banister House, Homerton High Street, Hackney, London, E9 6BP

Sold £249,000

  • Flat
  • 1 Bedroom
  • Tenure: Leasehold. The property is held on a 98 year lease from 16th January 2017 (thus approximately 92 years unexpired).

Call the team on 020 7625 9007 for more information

Auction Date

Wed 14/09/2022

Auction Time

9:00

Auction Venue

Live Stream

Viewing Times:

Wed 31 Aug

11:00-11:30

Fri 2 Sep

11:00-11:30

Tue 6 Sep

11:00-11:30

Thu 8 Sep

11:00-11:30

Sat 10 Sep

10:00-10:30

Mon 12 Sep

11:00-11:30

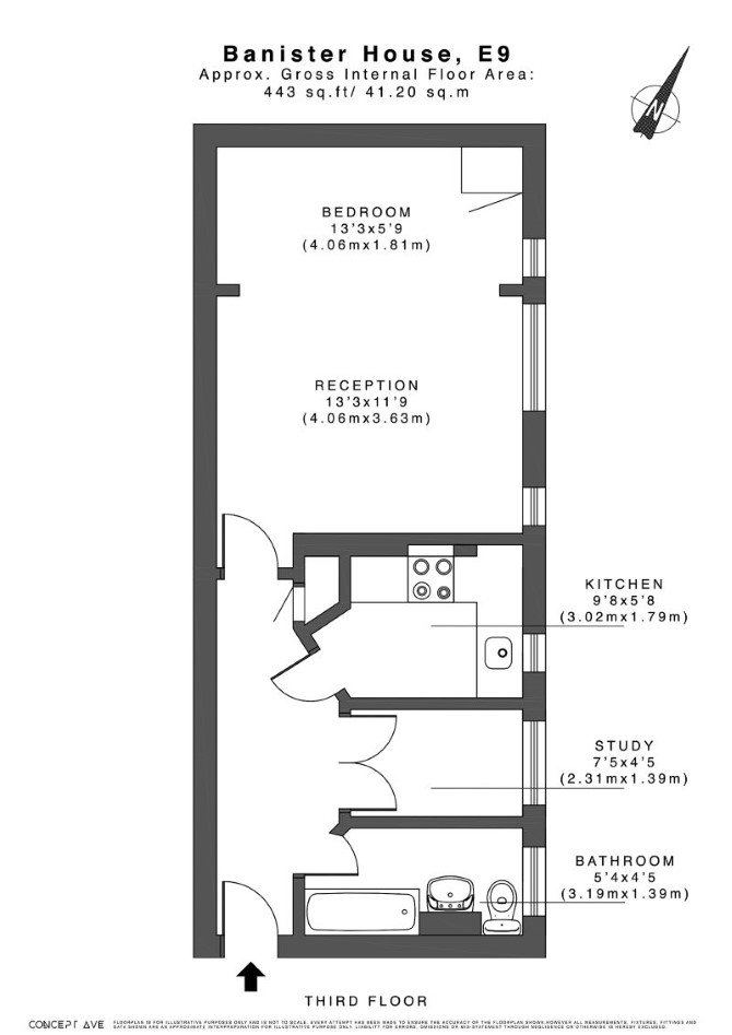
A Vacant Third Floor Studio Flat

The property comprises a third floor studio flat situated within a purpose built building arranged over ground and four upper floors.

Tenure

Leasehold. The property is held on a 98 year lease from 16th January 2017 (thus approximately 92 years unexpired).

By Order of the LPA Receivers

Location

The property is situated on a residential road close to local shops and amenities. The open spaces of Victoria Park are within easy reach. Transport links are provided by Homerton Overground Station

Accommodation

Third Floor Studio Room Kitchen Study Bathroom

Exterior

The property benefits from communal gardens

The internal images displayed in the auction particulars were taken before the property was tenanted. The directors of Auction House London have an interest in this property.

Services

Interested parties are requested to make their own enquiries to the relevant authorities as to the availability of services.

Important Notice to Prospective Buyers:

We draw your attention to the Special Conditions of Sale within the Legal Pack, referring to other charges in addition to the purchase price which may become payable. Such costs may include Search Fees, reimbursement of Sellers costs and Legal Fees, and Transfer Fees amongst others.

Additional Fees

Administration Charge - Purchasers will be required to pay an administration fee of £1,800 inc VAT

Disbursements - Please see the legal pack for any disbursements listed that may become payable by the purchaser on completion.

View Larger Map

Disclaimer: The map preview provided above is for general guidance only and may not accurately reflect the exact location or surrounding buildings. Prospective buyers and interested parties are strongly advised to independently verify the precise location and surroundings before bidding.