For Sale By Auction | 9:00, 14 September 2022 | Lot 24

Flat 14 The Combe, Munster Square, Euston, London, NW1 3LG

Sold £391,000

  • Flat
  • 1 Bedroom
  • Tenure: Leasehold. The property is held on a 125 year lease from 31st October 2016 (thus approximately 119 years unexpired).

Call the team on 020 7625 9007 for more information

Auction Date

Wed 14/09/2022

Auction Time

9:00

Auction Venue

Live Stream

Viewing Times:

Thu 1 Sep

14:00-14:30

Mon 5 Sep

14:00-14:30

Wed 7 Sep

14:00-14:30

Fri 9 Sep

14:00-14:30

Sat 10 Sep

11:00-11:30

Tue 13 Sep

14:00-14:30

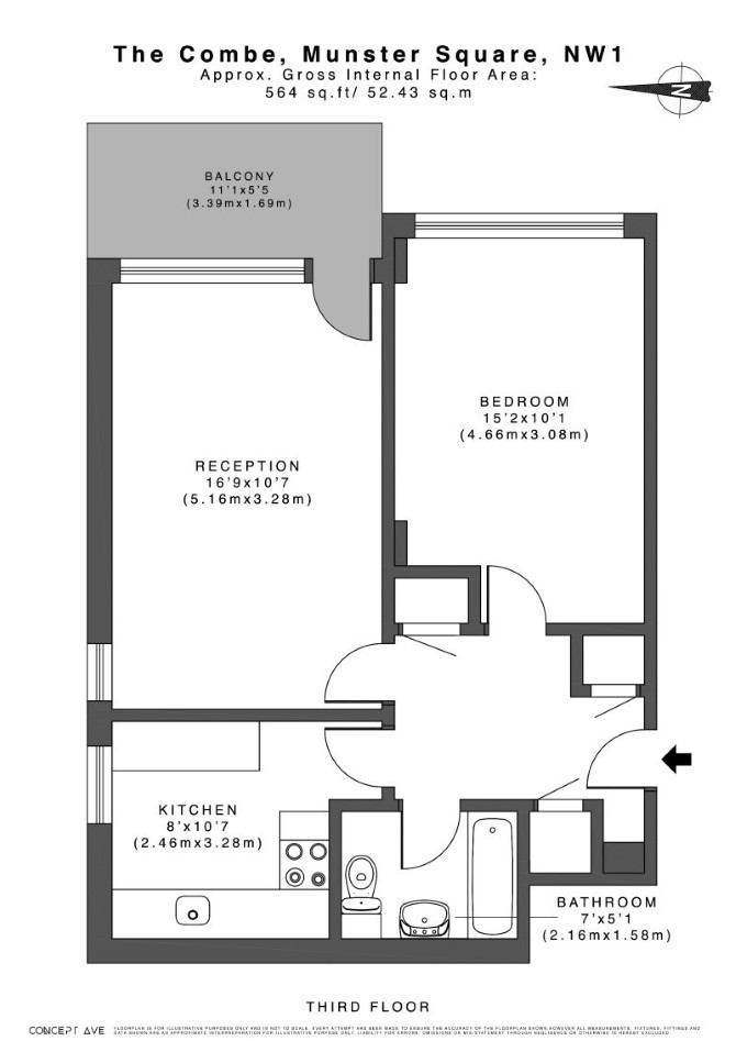
A Well Located Vacant Third Floor One Bedroom Flat

The property comprises a third floor one bedroom flat situated within a purpose built block arranged over ground and seventeen upper floors.

Tenure

Leasehold. The property is held on a 125 year lease from 31st October 2016 (thus approximately 119 years unexpired).

By Order of the LPA Receivers

Location

The property is situated on a residential road close to local shops and amenities. The open spaces of Regent's Park are within easy reach. Transport links are provided by Warren Street underground station (Northern and Victoria line) and Euston and Kings Cross St Pancras rail station.

Accommodation

Third Floor Reception Room Kitchen Bedroom Bathroom

Exterior

The property benefits from a balcony.

The directors of Auction House London have an interest in this property.

Services

Interested parties are requested to make their own enquiries to the relevant authorities as to the availability of services.

Important Notice to Prospective Buyers:

We draw your attention to the Special Conditions of Sale within the Legal Pack, referring to other charges in addition to the purchase price which may become payable. Such costs may include Search Fees, reimbursement of Sellers costs and Legal Fees, and Transfer Fees amongst others.

Additional Fees

Administration Charge - Purchasers will be required to pay an administration fee of £1,800 inc VAT

Disbursements - Please see the legal pack for any disbursements listed that may become payable by the purchaser on completion.

View Larger Map

Disclaimer: The map preview provided above is for general guidance only and may not accurately reflect the exact location or surrounding buildings. Prospective buyers and interested parties are strongly advised to independently verify the precise location and surroundings before bidding.