For Sale By Auction | 9:00, 14 September 2022 | Lot 31

11B Station Parade, Whitchurch Lane, Edgware, Middlesex, HA8 6RW

Sold £174,000

  • Flat
  • 2 Bedrooms
  • Tenure: Leasehold. The property is held on a 99 year lease from 1st June 1984 (thus approximately 60 years unexpired). At the buyer's request a section 42 notice to extend the lease will be served prior to completion, the rights of which would be assigned to the incoming buyer.

Call the team on 020 7625 9007 for more information

Auction Date

Wed 14/09/2022

Auction Time

9:00

Auction Venue

Live Stream

Viewing Times:

Wed 31 Aug

17:15-17:45

Fri 2 Sep

17:15-17:45

Sat 3 Sep

13:45-14:15

Tue 6 Sep

17:15-17:45

Thu 8 Sep

17:15-17:45

Sat 10 Sep

13:45-14:15

Mon 12 Sep

17:15-17:45

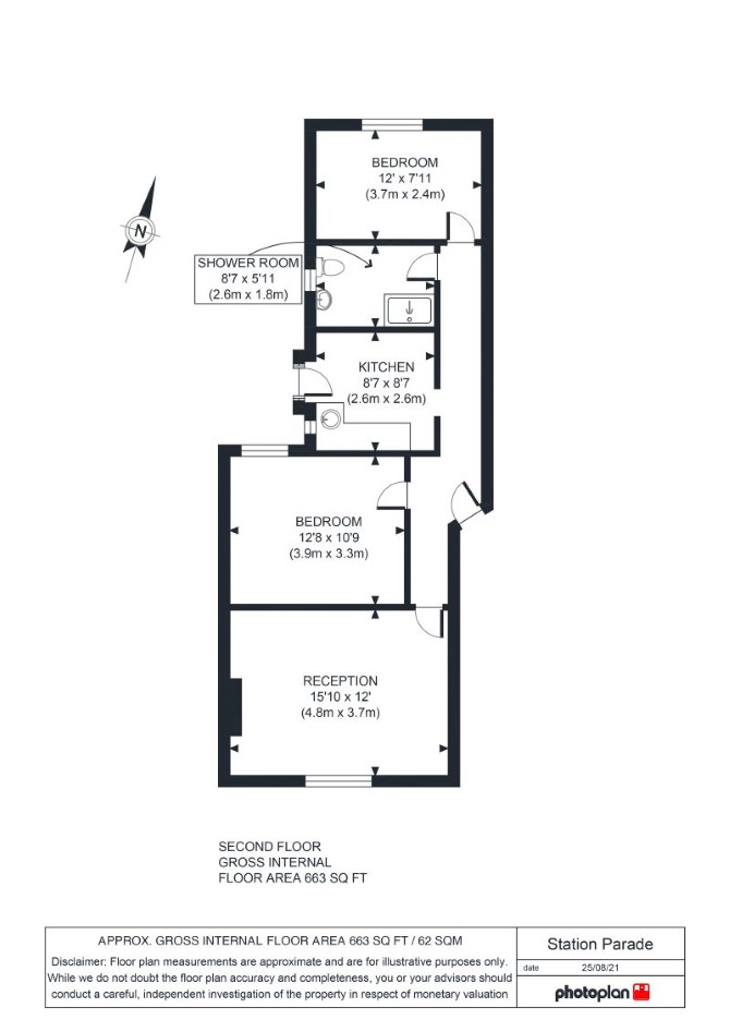
A Vacant Second Floor Two Bedroom Flat

The property comprises a second floor two bedroom flat situated within a mid terrace building arranged over ground and two upper floors.

Tenure

Leasehold. The property is held on a 99 year lease from 1st June 1984 (thus approximately 60 years unexpired). At the buyer's request a section 42 notice to extend the lease will be served prior to completion, the rights of which would be assigned to the incoming buyer.

8 Week Completion Available or Earlier if Required

Location

The property is situated on a mixed use road close to local shops and amenities. The open spaces of Canons Park are within easy reach. Transport links are provided by Canons Park underground station (Jubilee line).

Accommodation

Second Floor Reception Room Kitchen Two Bedrooms Bathroom

Services

Interested parties are requested to make their own enquiries to the relevant authorities as to the availability of services.

Important Notice to Prospective Buyers:

We draw your attention to the Special Conditions of Sale within the Legal Pack, referring to other charges in addition to the purchase price which may become payable. Such costs may include Search Fees, reimbursement of Sellers costs and Legal Fees, and Transfer Fees amongst others.

Additional Fees

Administration Charge - Purchasers will be required to pay an administration fee of £1,800 inc VAT

Disbursements - Please see the legal pack for any disbursements listed that may become payable by the purchaser on completion.

View Larger Map

Disclaimer: The map preview provided above is for general guidance only and may not accurately reflect the exact location or surrounding buildings. Prospective buyers and interested parties are strongly advised to independently verify the precise location and surroundings before bidding.