For Sale By Auction | 9:00, 14 September 2022 | Lot 53

101 Colney Road, Dartford, Kent, DA1 1TG

Sold £323,000

  • Semi-Detached House
  • 3 Bedrooms
  • Tenure: Freehold

Call the team on 020 7625 9007 for more information

Auction Date

Wed 14/09/2022

Auction Time

9:00

Auction Venue

Live Stream

Viewing Times:

Wed 31 Aug

17:00-17:30

Fri 2 Sep

17:00-17:30

Sat 3 Sep

14:15-14:45

Tue 6 Sep

17:00-17:30

Thu 8 Sep

17:00-17:30

Mon 12 Sep

17:00-17:30

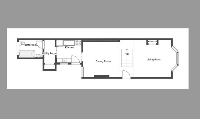
A Vacant Three Bedroom Semi Detached House

The property comprises a three bedroom semi detached house arranged over ground and first floor levels. The property requires a program of refurbishment.

Tenure

Freehold

Location

The property is situated on a residential road close to local shops and amenities. The open spaces of Dartford Central Park and Dartford Primary Academy Infant School (3 minute walk) are within easy reach. Transport links are provided by Dartford rail station.

Accommodation

Ground Floor Double Reception Room Kitchen Bathroom First Floor Three Bedrooms

Exterior

The property benefits from both front and rear gardens.

Services

Interested parties are requested to make their own enquiries to the relevant authorities as to the availability of services.

Important Notice to Prospective Buyers:

We draw your attention to the Special Conditions of Sale within the Legal Pack, referring to other charges in addition to the purchase price which may become payable. Such costs may include Search Fees, reimbursement of Sellers costs and Legal Fees, and Transfer Fees amongst others.

Additional Fees

Administration Charge - Purchasers will be required to pay an administration fee of £1,800 inc VAT

Disbursements - Please see the legal pack for any disbursements listed that may become payable by the purchaser on completion.

View Larger Map

Disclaimer: The map preview provided above is for general guidance only and may not accurately reflect the exact location or surrounding buildings. Prospective buyers and interested parties are strongly advised to independently verify the precise location and surroundings before bidding.