For Sale By Auction | 9:00, 08 February 2023 | Lot 183

89-93 Park Street, Luton, Bedfordshire, LU1 3HG

Sold £700,000

  • Commercial Development
  • Tenure: Freehold

Call the team on 020 7625 9007 for more information

Auction Date

Wed 08/02/2023

Auction Time

9:00

Auction Venue

Live Stream

Viewing Times:

Wed 25 Jan

10:45-11:15

Fri 27 Jan

10:45-11:15

Tue 31 Jan

10:45-11:15

Thu 2 Feb

10:45-11:15

Mon 6 Feb

10:45-11:15

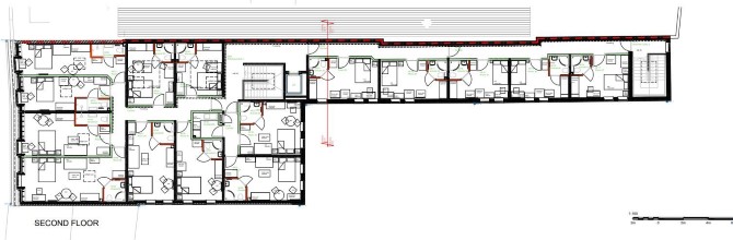
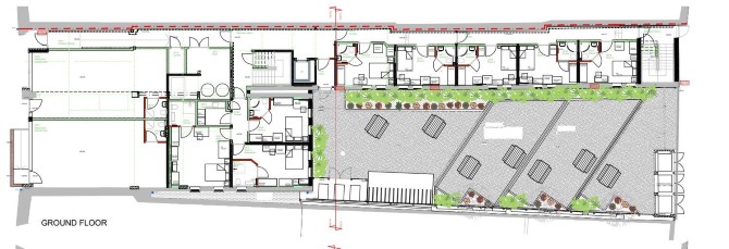
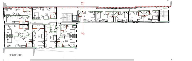
A Development Opportunity Comprising a Double Fronted Mid Terrace Building (Formerly Use-Class E) Measuring Approximately 8,883 sq ft (825 sq m). Offered With Planning Permission for Erection of a Second Floor Extension and Change of Use of Existing Building for 37 Bedrooms with Kitchenettes in Use Class C1 (Hotel), and an Open Class A1 (Retail)/Class B1(a) (Office) at Ground Floor Level.

The property comprises a two x mid terrace buildings arranged over ground and two upper floors. The property is in shell condition.

Tenure

Freehold

Location

The property is situated in Luton City Centre close to local shops and amenities. The open spaces of Manor Road Park are within easy reach. Transport links are provided by Luton rail station and Luton Airport Parkway,

Accommodation

Ground Floor G.I.A Approximately 392 sq m First Floor G.I.A Approximately 401 sq m Attic G.I.A Approximately 21 sq m

Exterior

The property benefits from rear access and off street parking for up to ten vehicles.

Planning

Luton Borough Council granted the following planning permission (ref: 19/00025/FUL) on 16/09/2022: 'Erection of a second floor extension and change of use of existing building for 37 bedrooms with kitchenettes in Use Class C1 (Hotel), and an open Class A1 (retail)/Class B1(a) (office) at ground floor level.'

Construction drawings are included in the legal pack in addition to DWG's which are available upon request.

Services

Interested parties are requested to make their own enquiries to the relevant authorities as to the availability of services.

Important Notice to Prospective Buyers:

We draw your attention to the Special Conditions of Sale within the Legal Pack, referring to other charges in addition to the purchase price which may become payable. Such costs may include Search Fees, reimbursement of Sellers costs and Legal Fees, and Transfer Fees amongst others.

Additional Fees

Administration Charge - Purchasers will be required to pay an administration fee of £1,800 inc VAT

Disbursements - Please see the legal pack for any disbursements listed that may become payable by the purchaser on completion.

View Larger Map

Disclaimer: The map preview provided above is for general guidance only and may not accurately reflect the exact location or surrounding buildings. Prospective buyers and interested parties are strongly advised to independently verify the precise location and surroundings before bidding.