Withdrawn | Lot 160

Land at Minster Road, Minster on Sea, Sheerness, Kent, ME12 3NR

Withdrawn

  • Land
  • Tenure: Freehold

Call the team on 020 7625 9007 for more information

Auction Date

Wed 08/02/2023

Auction Time

9:00

Auction Venue

Live Stream

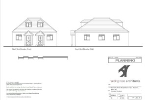
A Plot of Land Measuring Approximately 477.5 sq m (5,139 sq ft)

A freehold parcel of land measuring approximately 477.5 sq m (5,139 sq ft). Plans have been drawn up but not submitted for the erection of a three bedroom detached house with off-street parking. Buyers should rely on their own enquiries.

Tenure

Freehold

Location

The land is situated on a residential road close to local shops and amenities. The open spaces of Minster Leas Beach are within easy reach. Transport links are provided by Queenborough rail station.

Purchasers are deemed to rely on their own enquiries with regard to any possible development potential for this individual plot but these details show an artist’s impression of how a development on this site could look if planning permission is granted. The site area depicted within the plan in the auction particulars is for indicative purposes only. Additionally, any measurements stated may not be exact. Buyers should refer to the legal pack for the accurate site boundary and any consents or rights over the land. Purchasers are deemed to rely on their own enquiries with regard to precise measurements and any possible development potential or alternative uses for this land plot. Some or all of the land may comprise adopted highway land, buyers are advised to make their own enquiries.

Services

Interested parties are requested to make their own enquiries to the relevant authorities as to the availability of services.

Important Notice to Prospective Buyers:

We draw your attention to the Special Conditions of Sale within the Legal Pack, referring to other charges in addition to the purchase price which may become payable. Such costs may include Search Fees, reimbursement of Sellers costs and Legal Fees, and Transfer Fees amongst others.

Additional Fees

Administration Charge - Purchasers will be required to pay an administration fee of £1,800 inc VAT

Disbursements - Please see the legal pack for any disbursements listed that may become payable by the purchaser on completion.

View Larger Map

Disclaimer: The map preview provided above is for general guidance only and may not accurately reflect the exact location or surrounding buildings. Prospective buyers and interested parties are strongly advised to independently verify the precise location and surroundings before bidding.