For Sale By Auction | 09:00, 15 March 2023 | Lot 36

Development Site South of 28 Franklin Crescent, Mitcham, Merton, CR4 1NH

Sold £150,000

  • Land
  • 2 Bedrooms
  • Tenure: Freehold

Call the team on 020 7625 9007 for more information

Auction Date

Wed 15/03/2023

Auction Time

09:00

Auction Venue

Live Stream

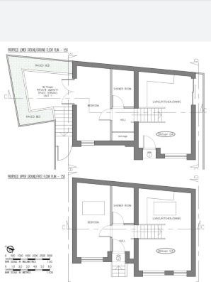
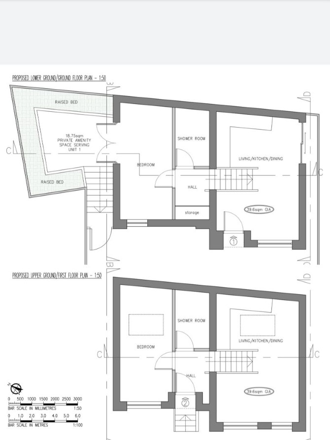
A Plot of Land Measuring Approximately 139 sq m (1,500 sq ft). Offered With Planning Permission for the Erection of a Two Storey Building to Create Two Studio Flats.

A parcel of land measuring approximately 139 sq m (1,500 sq ft).

Tenure

Freehold

Location

The land is situated on a residential road close to local shops and amenities. The open spaces of Mitcham Common are within easy reach. Transport links are provided by Mitcham Junction rail station and and Mitcham Eastfields (Thameslink).

Planning

Merton Borough Council granted the following planning permission subject to conditions (ref: 21/P4445) on 15th October 2022: 'Erection of a part one, part two-storey building to create 2 x studio flats'.

The site area depicted within the plan in the auction particulars is for indicative purposes only. Additionally, any measurements stated may not be exact. Buyers should refer to the legal pack for the accurate site boundary and any consents or rights over the land. Purchasers are deemed to rely on their own enquiries with regard to precise measurements and any possible development potential or alternative uses for this land plot.

Services

Interested parties are requested to make their own enquiries to the relevant authorities as to the availability of services.

Important Notice to Prospective Buyers:

We draw your attention to the Special Conditions of Sale within the Legal Pack, referring to other charges in addition to the purchase price which may become payable. Such costs may include Search Fees, reimbursement of Sellers costs and Legal Fees, and Transfer Fees amongst others.

Additional Fees

Administration Charge - Purchasers will be required to pay an administration fee of £1,800 inc VAT

Disbursements - Please see the legal pack for any disbursements listed that may become payable by the purchaser on completion.

View Larger Map

Disclaimer: The map preview provided above is for general guidance only and may not accurately reflect the exact location or surrounding buildings. Prospective buyers and interested parties are strongly advised to independently verify the precise location and surroundings before bidding.