For Sale By Auction | 09:00, 15 March 2023 | Lot 51

28 Hazelwood, Loughton, Essex, IG10 4ET

Sold £883,000

  • Detached House
  • 4 Bedrooms
  • Tenure: Freehold

Call the team on 020 7625 9007 for more information

Auction Date

Wed 15/03/2023

Auction Time

09:00

Auction Venue

Live Stream

Viewing Times:

Thu 9 Mar

14:00-15:00

Fri 10 Mar

14:00-15:00

Sat 11 Mar

14:00-15:00

A Four Bedroom Detached House Subject to an Assured Shorthold Tenancy Producing £36,000 Per Annum

The property comprises a four bedroom detached house arranged over ground and first floors.

Tenure

Freehold

By Order of the LPA Receivers

Location

The property is situated on a quiet cul-de-sac close to local shops and amenities. The green open spaces of Epping Forest are within easy reach. Transport links are provided by Loughton underground station (Central line).

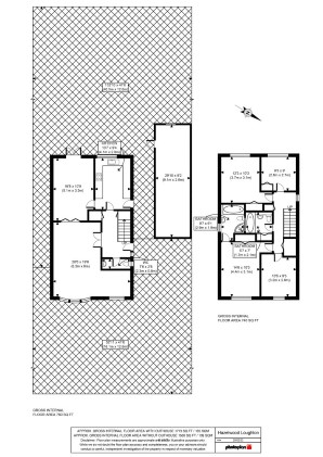
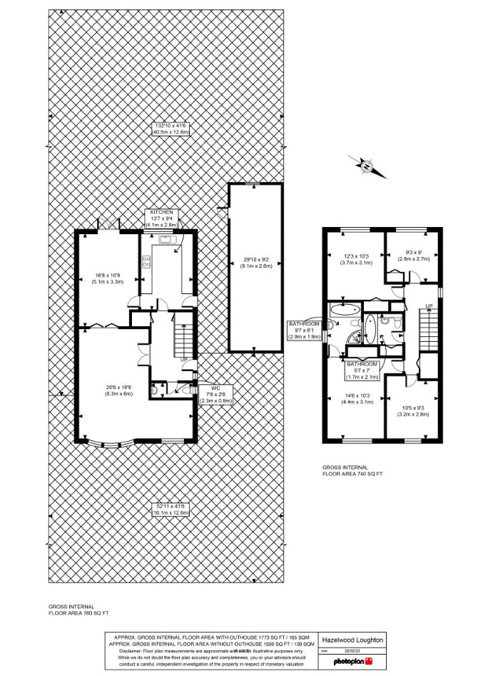
Accommodation

Ground Floor Two Reception Rooms Kitchen First Floor Four Bedrooms (One with En-Suite Bathroom) Bathroom GIA 138.34 sq m (1,489 sq ft)

Exterior

The property benefits from both front and rear gardens, off street parking and a garage.

Tenancy

The property is subject to an Assured Shorthold Tenancy for a term of 12 months commencing 23rd July 2021 at a rent of £3,000 per calendar month (holding over).

The property has not been inspected by Auction House London. All information has been taken from a valuation report carried out in January 2023.

Services

Interested parties are requested to make their own enquiries to the relevant authorities as to the availability of services.

Important Notice to Prospective Buyers:

We draw your attention to the Special Conditions of Sale within the Legal Pack, referring to other charges in addition to the purchase price which may become payable. Such costs may include Search Fees, reimbursement of Sellers costs and Legal Fees, and Transfer Fees amongst others.

Additional Fees

Administration Charge - Purchasers will be required to pay an administration fee of £1,800 inc VAT

Disbursements - Please see the legal pack for any disbursements listed that may become payable by the purchaser on completion.

View Larger Map

Disclaimer: The map preview provided above is for general guidance only and may not accurately reflect the exact location or surrounding buildings. Prospective buyers and interested parties are strongly advised to independently verify the precise location and surroundings before bidding.