For Sale By Auction | 09:00, 15 March 2023 | Lot 80

141 London Road, Kingston upon Thames, Surrey, KT2 6NH

*Guide | £850,000+ (plus fees)

  • Mixed Use
  • 6 Bedrooms
  • Tenure: Freehold

Call the team on 020 7625 9007 for more information

Auction Date

Wed 15/03/2023

Auction Time

09:00

Auction Venue

Live Stream

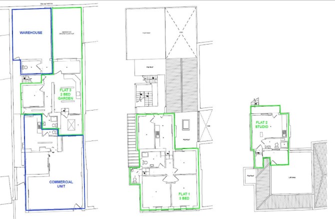
A Freehold Mixed Use Building Arranged to Provide a Ground Floor Retail Unit and Three Self-Contained Flats Fully Let Producing £69,660 Per Annum.

The property comprises an end of terrace building arranged to provide a ground floor retail unit and three self-contained flats across ground, first and second floors.

Tenure

Freehold

Location

The property is situated on a mixed use road close to local shops and amenities. The open spaces of Richmond Park are within easy reach. Transport links are provided by Kingston rail station.

Planning

Kingston Upon Thames Borough Council refused (appeal started) the following planning permission (ref: 21/03726/FUL) on 21st March 2022: 'Demolition of the existing building for erection of commercial space (Class E) to front ground floor with 5no. self-contained residential units (Class C3) to the rear and above with associated amenity space, cycle storage and refuse/recycling facilities'. The vendor has begun the process to appeal this decision and has been provided with a validation notice, please refer to the legal pack for further details.

Services

Interested parties are requested to make their own enquiries to the relevant authorities as to the availability of services.

Important Notice to Prospective Buyers:

We draw your attention to the Special Conditions of Sale within the Legal Pack, referring to other charges in addition to the purchase price which may become payable. Such costs may include Search Fees, reimbursement of Sellers costs and Legal Fees, and Transfer Fees amongst others.

Additional Fees

Administration Charge - Purchasers will be required to pay an administration fee of £1,800 inc VAT

Disbursements - Please see the legal pack for any disbursements listed that may become payable by the purchaser on completion.

View Larger Map

Disclaimer: The map preview provided above is for general guidance only and may not accurately reflect the exact location or surrounding buildings. Prospective buyers and interested parties are strongly advised to independently verify the precise location and surroundings before bidding.