For Sale By Auction | 0845, 02 August 2023 | Lot 22

Flat 11 Bailey House, 9 Talwin Street, Bow, London, E3 3NF

Sold £220,000

  • Flat
  • 1 Bedroom
  • Tenure: Leasehold. The property is held on a 999 year lease from 1st January 2004 (thus approximately 980 years unexpired).

Call the team on 020 7625 9007 for more information

Auction Date

Wed 02/08/2023

Auction Time

0845

Auction Venue

Live Stream

Viewing Times:

Wed 19 Jul

14:15-14:45

Fri 21 Jul

14:15-14:45

Sat 22 Jul

09:30-10:00

Tue 25 Jul

14:15-14:45

Thu 27 Jul

14:15-14:45

Sat 29 Jul

11:30-12:00

Mon 31 Jul

14:15-14:45

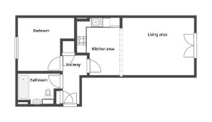
A Vacant Third Floor One Bedroom Flat

The property comprises a third floor one bedroom flat situated within a purpose built building arranged over ground and four upper floors.

Tenure

Leasehold. The property is held on a 999 year lease from 1st January 2004 (thus approximately 980 years unexpired).

Location

The property is situated on a residential road close to local shops and amenities. The open spaces of Bromley Recreation Ground are within easy reach. Transport links are provided by Bromley-by-Bow underground station (District line and Hammersmith City).

Accommodation

Third Floor Reception Room Kitchen Bedroom Bathroom

Exterior

The property benefits from communal gardens.

Energy Efficiency Rating (EPC)

Current Rating B

Services

Interested parties are requested to make their own enquiries to the relevant authorities as to the availability of services.

Important Notice to Prospective Buyers:

We draw your attention to the Special Conditions of Sale within the Legal Pack, referring to other charges in addition to the purchase price which may become payable. Such costs may include Search Fees, reimbursement of Sellers costs and Legal Fees, and Transfer Fees amongst others.

Additional Fees

Administration Charge - Purchasers will be required to pay an administration fee of £1,800 inc VAT

Disbursements - Please see the legal pack for any disbursements listed that may become payable by the purchaser on completion.

View Larger Map

Disclaimer: The map preview provided above is for general guidance only and may not accurately reflect the exact location or surrounding buildings. Prospective buyers and interested parties are strongly advised to independently verify the precise location and surroundings before bidding.