Withdrawn | Lot 190

Roof Space at Pier House Tower Promenade, Wallasey, Merseyside, CH45 2JY

Withdrawn

  • Flat
  • 6 Bedrooms
  • Tenure: Leasehold, approximately 900 years unexpired on the lease.

Call the team on 020 7625 9007 for more information

Auction Date

Wed 02/08/2023

Auction Time

0845

Auction Venue

Live Stream

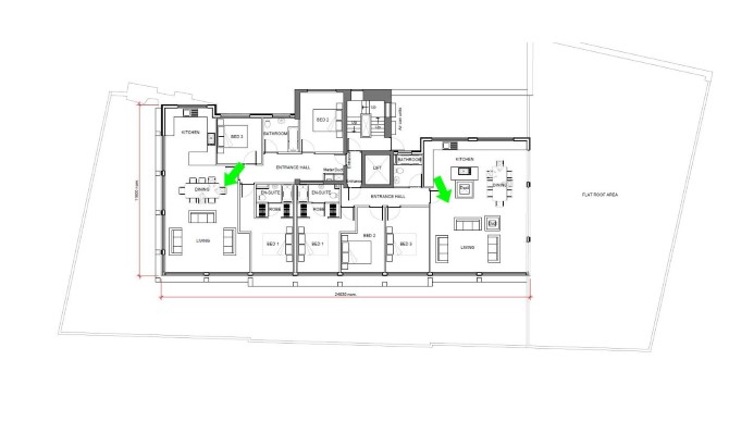
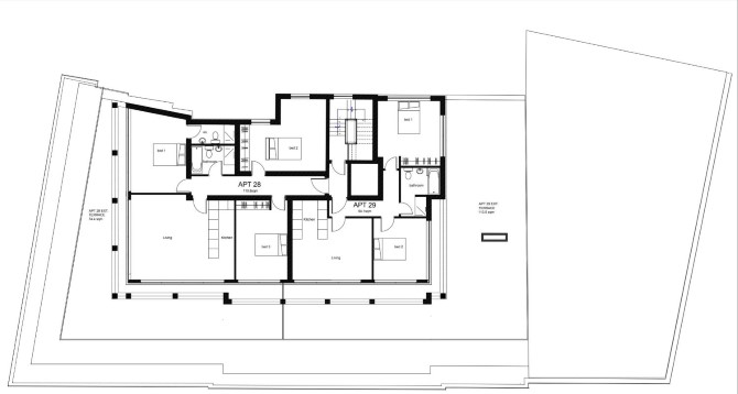
A Residential Development Opportunity Offered with Planning Permission for the Construction of a Fourth Floor Extension to Create an Additional Two Flats (2 x Three Bedrooms).

The property comprises the roof space area above a detached block of flats arranged over ground and three upper floors.

Tenure

Leasehold, approximately 900 years unexpired on the lease.

Location

The property is situated with the shops and restaurants on the Promenade. With easy access to the beach and boasting stunning views across the River Mersey. Transport links are provided by New Brighton rail station.

Exterior

The property benefits from two parking spaces.

Planning

Wirral Planning Office granted the following planning permission (Ref: APP/22/00998.) dated 10th March 2023 for: 'Erection of rooftop extension to form two 3-bedroom apartments (re-submission of application APP/19/00570)'

Proposed Accommodation

Fourth Floor Flat 1 Three Bedrooms one with En-Suite Reception Room with Open Plan Kitchen Bathroom Flat 2 Three Bedrooms one with En-Suite Reception Room with Open Plan Kitchen Bathroom

Services

Interested parties are requested to make their own enquiries to the relevant authorities as to the availability of services.

Important Notice to Prospective Buyers:

We draw your attention to the Special Conditions of Sale within the Legal Pack, referring to other charges in addition to the purchase price which may become payable. Such costs may include Search Fees, reimbursement of Sellers costs and Legal Fees, and Transfer Fees amongst others.

Additional Fees

Administration Charge - Purchasers will be required to pay an administration fee of £1,800 inc VAT

Disbursements - Please see the legal pack for any disbursements listed that may become payable by the purchaser on completion.

View Larger Map

Disclaimer: The map preview provided above is for general guidance only and may not accurately reflect the exact location or surrounding buildings. Prospective buyers and interested parties are strongly advised to independently verify the precise location and surroundings before bidding.