Withdrawn | Lot 92

28 Dundalk Road, Nunhead, London, SE4 2JL

Withdrawn

  • Terraced House
  • 5 Bedrooms
  • Tenure: Freehold

Call the team on 020 7625 9007 for more information

Auction Date

Wed 25/10/2023

Auction Time

08:45

Auction Venue

Live Stream

Viewing Times:

Thu 19 Oct

10:45-11:15

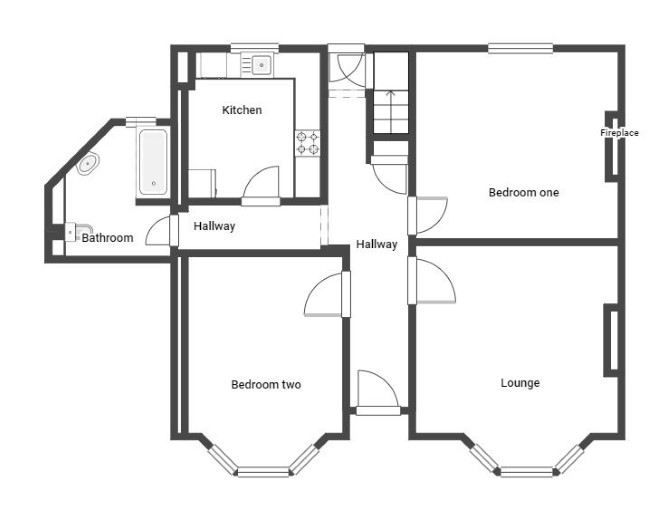
An End of Terrace Building Arranged to Provide Two Self-Contained Flats (1 x Two Bedroom, 1 x Three Bedroom)

The property comprises an end of terrace building arranged to provide a ground floor two bedroom flat and a first floor three bedroom flat.

Tenure

Freehold

By Order of the LPA Receivers

Location

The property is situated on a residential road close to local shops and amenities. The open spaces of Telegraph Hill Upper Park are within easy reach. Transport links are provided by Brockley overground and rail stations.

Accommodation

Ground Floor Flat Reception Room Kitchen Two Bedrooms Bathroom First Floor Flat Reception Room Kitchen Three Bedrooms Bathroom Separate WC

Exterior

The ground floor flat benefits from a private rear garden.

Tenancy

We understand that both flats are occupied however we have only been provided with the details of the ground floor flat which is subject to a lease/agreement for a term of 12 months commencing 22nd December 2022 at a rent of £1,550 per calendar month. Please refer to the legal pack for further information.

Energy Efficiency Rating (EPC)

Current Rating D

Services

Interested parties are requested to make their own enquiries to the relevant authorities as to the availability of services.

Important Notice to Prospective Buyers:

We draw your attention to the Special Conditions of Sale within the Legal Pack, referring to other charges in addition to the purchase price which may become payable. Such costs may include Search Fees, reimbursement of Sellers costs and Legal Fees, and Transfer Fees amongst others.

Additional Fees

Administration Charge - Purchasers will be required to pay an administration fee of £1,800 inc VAT

Disbursements - Please see the legal pack for any disbursements listed that may become payable by the purchaser on completion.

View Larger Map

Disclaimer: The map preview provided above is for general guidance only and may not accurately reflect the exact location or surrounding buildings. Prospective buyers and interested parties are strongly advised to independently verify the precise location and surroundings before bidding.