For Sale By Auction | 08:45, 06 December 2023 | Lot 16

6 Bewley Court, Whittingham Avenue, Southend-on-Sea, Essex, SS2 4RG

Sold £109,000

  • Flat
  • 2 Bedrooms
  • Tenure: Leasehold. The property is held on a 125 year lease from 22nd May 1989 (thus approximately 90 years unexpired).

Call the team on 020 7625 9007 for more information

Auction Date

Wed 06/12/2023

Auction Time

08:45

Auction Venue

Live Stream

Viewing Times:

Sat 18 Nov

12:00-12:30

Wed 22 Nov

18:00-18:30

Sat 25 Nov

12:00-12:30

Wed 29 Nov

18:00-18:30

Sat 2 Dec

12:00-12:30

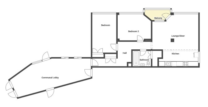
A Vacant First Floor Two Bedroom Flat

The property comprises a first floor two bedroom flat situated within a purpose built block arranged over ground and ten upper floors.

Tenure

Leasehold. The property is held on a 125 year lease from 22nd May 1989 (thus approximately 90 years unexpired).

Location

The property is situated on a residential road close to local shops and amenities. The open spaces of The Public Park are within easy reach. Transport links are provided by Southend East rail station.

Accommodation

First Floor Reception Room Kitchen Two Bedrooms Bathroom

Exterior

The property benefits from communal gardens.

Energy Efficiency Rating (EPC)

Current Rating D

Services

Interested parties are requested to make their own enquiries to the relevant authorities as to the availability of services.

Important Notice to Prospective Buyers:

We draw your attention to the Special Conditions of Sale within the Legal Pack, referring to other charges in addition to the purchase price which may become payable. Such costs may include Search Fees, reimbursement of Sellers costs and Legal Fees, and Transfer Fees amongst others.

Additional Fees

Administration Charge - Purchasers will be required to pay an administration fee of £1,800 inc VAT

Disbursements - Please see the legal pack for any disbursements listed that may become payable by the purchaser on completion.

View Larger Map

Disclaimer: The map preview provided above is for general guidance only and may not accurately reflect the exact location or surrounding buildings. Prospective buyers and interested parties are strongly advised to independently verify the precise location and surroundings before bidding.