Withdrawn | Lot 104

4 Barnsley Road, Hemsworth, Pontefract, West Yorkshire, WF9 4PY

Withdrawn

  • Mixed Use
  • 6 Bedrooms
  • Tenure: Freehold

Call the team on 020 7625 9007 for more information

Auction Date

Wed 07/02/2024

Auction Time

09:30

Auction Venue

Live Stream

Viewing Times:

Fri 26 Jan

10:45-11:15

Wed 31 Jan

10:45-11:15

Mon 5 Feb

10:45-11:15

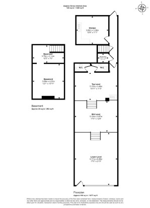
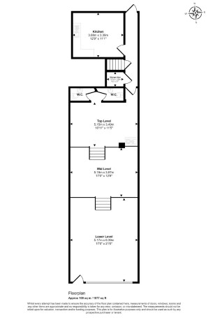
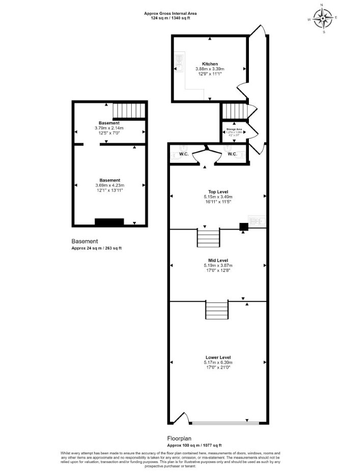
A Mixed Use Investment Part Let Producing £40,414.68 Per Annum. Potential to Convert Ground Floor into 2 x Self-Contained Flats (Subject to Obtaining all Relevant Consents)

The property comprises a semi detached building arranged to provide a ground floor commercial unit, 4 x first floor studio flats and 2 x second floor studio flats.

Tenure

Freehold

Location

The property is situated on a mixed use road close to local shops and amenities. The open spaces of West End Park are within easy reach. Transport links are provided by Fitzwilliam rail station.

Energy Efficiency Rating (EPC)

Current Rating D

Services

Interested parties are requested to make their own enquiries to the relevant authorities as to the availability of services.

Important Notice to Prospective Buyers:

We draw your attention to the Special Conditions of Sale within the Legal Pack, referring to other charges in addition to the purchase price which may become payable. Such costs may include Search Fees, reimbursement of Sellers costs and Legal Fees, and Transfer Fees amongst others.

Additional Fees

Administration Charge - Purchasers will be required to pay an administration fee of £1,800 inc VAT

Disbursements - Please see the legal pack for any disbursements listed that may become payable by the purchaser on completion.

View Larger Map

Disclaimer: The map preview provided above is for general guidance only and may not accurately reflect the exact location or surrounding buildings. Prospective buyers and interested parties are strongly advised to independently verify the precise location and surroundings before bidding.