For Sale By Auction | 09:30, 07 February 2024 | Lot 155

67B Hamlet Court Road, Westcliff-on-Sea, Essex, SS0 7EU

Sold £165,000

  • Flat
  • 3 Bedrooms
  • Tenure: Leasehold. The property is held on a 125 year lease from 25th March 1985 (thus approximately 86 years unexpired).

Call the team on 020 7625 9007 for more information

Auction Date

Wed 07/02/2024

Auction Time

09:30

Auction Venue

Live Stream

Viewing Times:

Wed 24 Jan

11:00-11:30

Sat 27 Jan

11:00-11:30

Wed 31 Jan

11:00-11:30

Sat 3 Feb

11:00-11:30

Tue 6 Feb

11:00-11:30

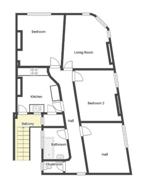
A Vacant Second Floor Three Bedroom Flat

The property comprises a second floor three bedroom flat situated within a mid terraced building arranged over ground and two upper floors.

Tenure

Leasehold. The property is held on a 125 year lease from 25th March 1985 (thus approximately 86 years unexpired).

Location

The property is situated on a mixed use road close to local shops and amenities. The open spaces of Chalkwell Park are within easy reach. Transport links are provided by Westcliff rail station.

Accommodation

Second Floor Reception Room Kitchen Three Bedrooms Bathroom W/C

Energy Efficiency Rating (EPC)

Current Rating D

Services

Interested parties are requested to make their own enquiries to the relevant authorities as to the availability of services.

Important Notice to Prospective Buyers:

We draw your attention to the Special Conditions of Sale within the Legal Pack, referring to other charges in addition to the purchase price which may become payable. Such costs may include Search Fees, reimbursement of Sellers costs and Legal Fees, and Transfer Fees amongst others.

Additional Fees

Administration Charge - Purchasers will be required to pay an administration fee of £1,800 inc VAT

Disbursements - Please see the legal pack for any disbursements listed that may become payable by the purchaser on completion.

View Larger Map

Disclaimer: The map preview provided above is for general guidance only and may not accurately reflect the exact location or surrounding buildings. Prospective buyers and interested parties are strongly advised to independently verify the precise location and surroundings before bidding.