Withdrawn | Lot 29

30 Sussex Gardens, Paddington, London, W2 1UL

Withdrawn

  • Hotel
  • 13 Bedrooms
  • Tenure: Freehold

Call the team on 020 7625 9007 for more information

Auction Date

Wed 07/02/2024

Auction Time

09:30

Auction Venue

Live Stream

A Well Located Grade II Listed Thirteen Bedroom Hotel

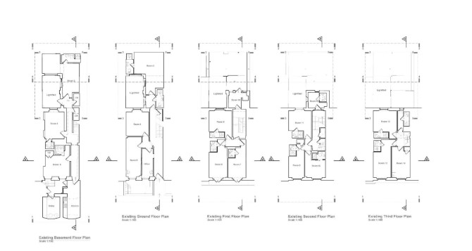
The property comprises a Grade II Listed thirteen bedroom hotel arranged over lower ground, ground and three upper floors.

Tenure

Freehold

By Order of the Fixed Charge Receivers

Location

The property is situated in the highly sought after area of Paddington close to local shops and amenities. The open spaces of Hyde Park are within easy reach. Transport links are provided by Paddington underground (Bakerloo, Circle and Elizabeth lines) and rail stations.

Accommodation

Lower Ground Floor Kitchen Three Bedrooms (Each with En-Suites) Utility Room Ground Floor Entrance Hall Two Bedrooms (Each with En-Suites) First Floor Three Bedrooms (Each with En-Suites) Second Floor Three Bedrooms (Each with En-Suites) Third Floor Two Bedrooms (Each with En-Suites)

Tenancy

We understand from our clients that the property is currently in use as a hotel. As such, the property is not offered with vacant possession. Buyers should refer to the legal pack for more information.

Energy Efficiency Rating (EPC)

Current Rating A

Services

Interested parties are requested to make their own enquiries to the relevant authorities as to the availability of services.

Important Notice to Prospective Buyers:

We draw your attention to the Special Conditions of Sale within the Legal Pack, referring to other charges in addition to the purchase price which may become payable. Such costs may include Search Fees, reimbursement of Sellers costs and Legal Fees, and Transfer Fees amongst others.

Additional Fees

Administration Charge - Purchasers will be required to pay an administration fee of £1,800 inc VAT

Disbursements - Please see the legal pack for any disbursements listed that may become payable by the purchaser on completion.

View Larger Map

Disclaimer: The map preview provided above is for general guidance only and may not accurately reflect the exact location or surrounding buildings. Prospective buyers and interested parties are strongly advised to independently verify the precise location and surroundings before bidding.