For Sale By Auction | 09:30, 07 February 2024 | Lot 122

Flat 11, 480 Hornsey Road, Islington, London, N19 4EF

Sold £145,000

  • Flat
  • 1 Bedroom
  • Tenure: Leasehold. The property is held on a 125 year lease from 5th April 2007 (thus approximately 108 years unexpired).

Call the team on 020 7625 9007 for more information

Auction Date

Wed 07/02/2024

Auction Time

09:30

Auction Venue

Live Stream

Viewing Times:

Thu 25 Jan

12:30-13:00

Mon 29 Jan

12:30-13:00

Wed 31 Jan

12:30-13:00

Fri 2 Feb

12:30-13:00

Sat 3 Feb

10:00-10:30

Tue 6 Feb

12:30-13:00

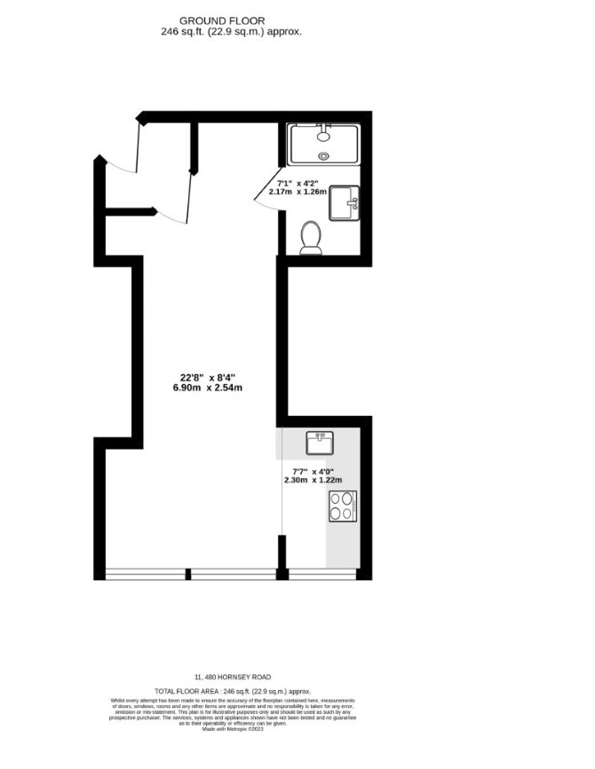
A Vacant Ground Floor Studio Flat

The property comprises a ground floor studio flat situated within a mid terrace building arranged over ground and three upper floors.

Tenure

Leasehold. The property is held on a 125 year lease from 5th April 2007 (thus approximately 108 years unexpired).

Location

The property is situated on a residential road close to local shops and amenities. The open spaces of Wray Crescent Open Space are within easy reach. Transport links are provided by Archway underground station (Northern line) and Upper Holloway rail station.

Accommodation

Ground Floor Studio Room Bathroom

Energy Efficiency Rating (EPC)

Current Rating C

Services

Interested parties are requested to make their own enquiries to the relevant authorities as to the availability of services.

Important Notice to Prospective Buyers:

We draw your attention to the Special Conditions of Sale within the Legal Pack, referring to other charges in addition to the purchase price which may become payable. Such costs may include Search Fees, reimbursement of Sellers costs and Legal Fees, and Transfer Fees amongst others.

Additional Fees

Administration Charge - Purchasers will be required to pay an administration fee of £1,800 inc VAT

Disbursements - Please see the legal pack for any disbursements listed that may become payable by the purchaser on completion.

View Larger Map

Disclaimer: The map preview provided above is for general guidance only and may not accurately reflect the exact location or surrounding buildings. Prospective buyers and interested parties are strongly advised to independently verify the precise location and surroundings before bidding.