Withdrawn | Lot 119

Flat 1, Rotherwick Court, 72 Alexandra Road, Farnborough, Hampshire, GU14 6DD

Withdrawn

  • Flat
  • 1 Bedroom
  • Tenure: Leasehold. The property is held on a 99 year lease from 28th April 1969 (thus approximately 44 years unexpired).

Call the team on 020 7625 9007 for more information

Auction Date

Tue 12/03/2024

Auction Time

08:45

Auction Venue

Live Stream

Viewing Times:

Wed 28 Feb

11:00-11:30

Tue 5 Mar

10:00-10:30

Thu 7 Mar

10:00-10:30

Sat 9 Mar

10:00-10:30

Mon 11 Mar

10:00-10:30

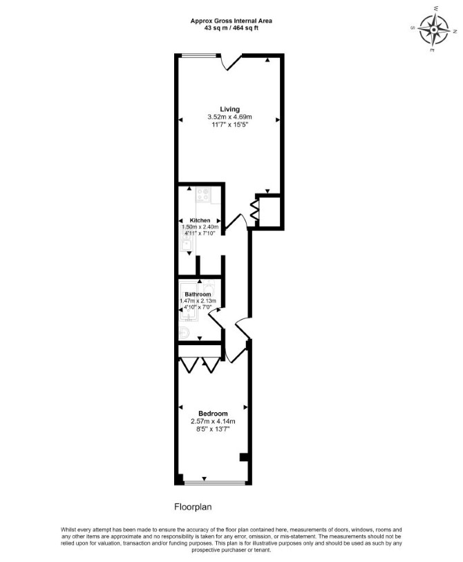
A Vacant Ground Floor One Bedroom Flat

The property comprises a ground floor one bedroom flat situated within a purpose built block arranged over ground and two upper floors.

Tenure

Leasehold. The property is held on a 99 year lease from 28th April 1969 (thus approximately 44 years unexpired).

Location

The property is situated on a residential road close to local shops and amenities. The open spaces of Osborne Road Park are within easy reach. Transport links are provided by North Camp rail station.

Accommodation

Ground Floor Reception Room Kitchen Bedroom Bathroom

Energy Efficiency Rating (EPC)

Current Rating D

Services

Interested parties are requested to make their own enquiries to the relevant authorities as to the availability of services.

Important Notice to Prospective Buyers:

We draw your attention to the Special Conditions of Sale within the Legal Pack, referring to other charges in addition to the purchase price which may become payable. Such costs may include Search Fees, reimbursement of Sellers costs and Legal Fees, and Transfer Fees amongst others.

Additional Fees

Administration Charge - Purchasers will be required to pay an administration fee of £1,800 inc VAT

Disbursements - Please see the legal pack for any disbursements listed that may become payable by the purchaser on completion.

View Larger Map

Disclaimer: The map preview provided above is for general guidance only and may not accurately reflect the exact location or surrounding buildings. Prospective buyers and interested parties are strongly advised to independently verify the precise location and surroundings before bidding.