Sold Prior | Lot 242

The Arches, 85 Childers Street, Lewisham, London, SE8 5NN

Sold Prior

  • Block of Apartments
  • 11 Bedrooms
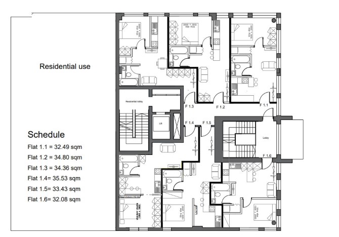
  • Tenure: Leasehold. The 10 flats are held on a 150 year head lease from 8th June 2010 (thus approximately 136 years unexpired). 10 individual leases have been drafted ready for submission to Land Registry (freeholder's consent not required). Please refer to legal pack.

Call the team on 020 7625 9007 for more information

Auction Date

Tue 12/03/2024

Auction Time

08:45

Auction Venue

Live Stream

Ten Self-Contained Flats (9 x One Bedroom, 1 x Two Bedroom) Offered Under One Head Lease. Potential Break Up/Rental Investment Opportunity. Flats Offered with Vacant Possession upon Completion.

The property comprises ten self-contained flats (9 x one bedroom, 1 x two bedroom) arranged over the ground and first floors of a purpose built block which is arranged over ground and seven upper floors.

Tenure

Leasehold. The 10 flats are held on a 150 year head lease from 8th June 2010 (thus approximately 136 years unexpired). 10 individual leases have been drafted ready for submission to Land Registry (freeholder's consent not required). Please refer to legal pack.

By Order of the Mortgagees

Location

The flats are situated on a residential road close to local shops and amenities. The open spaces of Folkestone Gardens are within easy reach. Transport links are provided by New Cross overground and rail stations.

Tenancy

We understand that the property was formerly let at a rent of £204,000 per annum

Services

Interested parties are requested to make their own enquiries to the relevant authorities as to the availability of services.

Important Notice to Prospective Buyers:

We draw your attention to the Special Conditions of Sale within the Legal Pack, referring to other charges in addition to the purchase price which may become payable. Such costs may include Search Fees, reimbursement of Sellers costs and Legal Fees, and Transfer Fees amongst others.

Additional Fees

Administration Charge - Purchasers will be required to pay an administration fee of £1,800 inc VAT

Disbursements - Please see the legal pack for any disbursements listed that may become payable by the purchaser on completion.

View Larger Map

Disclaimer: The map preview provided above is for general guidance only and may not accurately reflect the exact location or surrounding buildings. Prospective buyers and interested parties are strongly advised to independently verify the precise location and surroundings before bidding.