Withdrawn | Lot 158

51 Briton Ferry Road, Neath, West Glamorgan, SA11 1AR

Withdrawn

  • Retail Property (high street)
  • Tenure: Freehold

Call the team on 020 7625 9007 for more information

Auction Date

Wed 17/04/2024

Auction Time

08:45

Auction Venue

Live Stream

Viewing Times:

Thu 4 Apr

11:00-11:30

Sat 6 Apr

11:00-11:30

Wed 10 Apr

11:00-11:30

Sat 13 Apr

11:00-11:30

Tue 16 Apr

11:00-11:30

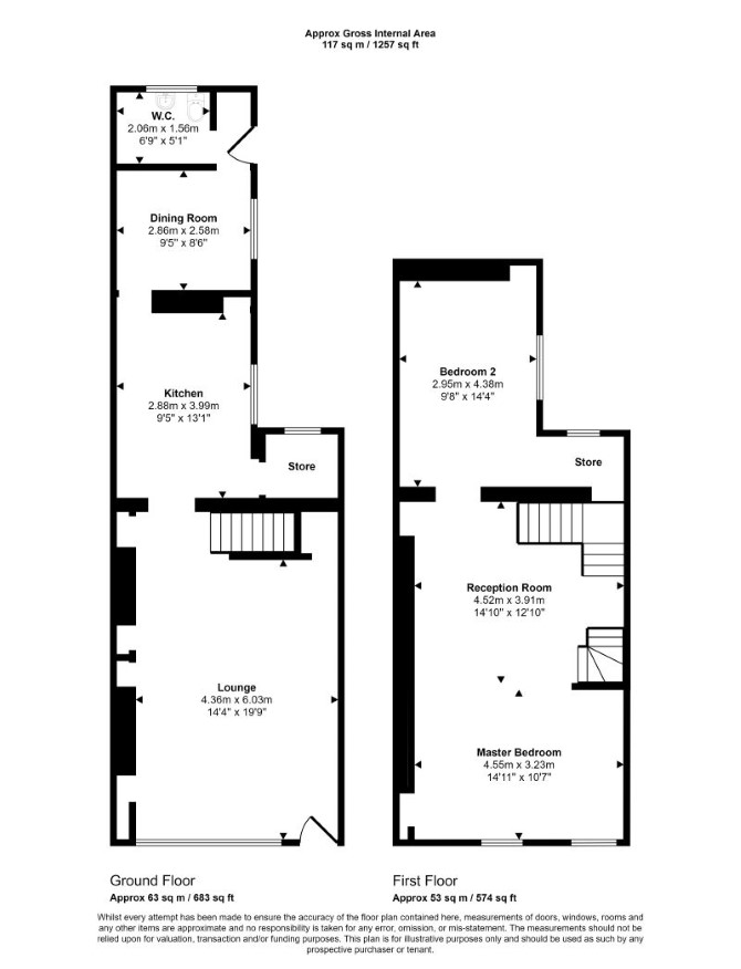
A Vacant Mixed Use Mid Terrace Building Arranged to Provide a Ground Floor Shop and First Floor Ancillary Accommodation

The property comprises a mixed use mid terrace building arranged to provide a ground floor shop in shell condition and first floor ancillary accommodation.

Tenure

Freehold

Location

The property is situated on a mixed use road close to local shops and amenities. The open spaces of Mount Pleasant Park are within easy reach. Transport links are provided by Neath rail station.

Accommodation

Ground Floor Retail Area WC First Floor Two Rooms

Services

Interested parties are requested to make their own enquiries to the relevant authorities as to the availability of services.

Important Notice to Prospective Buyers:

We draw your attention to the Special Conditions of Sale within the Legal Pack, referring to other charges in addition to the purchase price which may become payable. Such costs may include Search Fees, reimbursement of Sellers costs and Legal Fees, and Transfer Fees amongst others.

Additional Fees

Administration Charge - Purchasers will be required to pay an administration fee of £1,800 inc VAT

Disbursements - Please see the legal pack for any disbursements listed that may become payable by the purchaser on completion.

View Larger Map

Disclaimer: The map preview provided above is for general guidance only and may not accurately reflect the exact location or surrounding buildings. Prospective buyers and interested parties are strongly advised to independently verify the precise location and surroundings before bidding.