Withdrawn | Lot 25A

85 Florence Road, Southall, Middlesex, UB2 5HX

Withdrawn

  • Terraced House
  • 6 Bedrooms
  • Tenure: Freehold

Call the team on 020 7625 9007 for more information

Auction Date

Wed 17/04/2024

Auction Time

08:45

Auction Venue

Live Stream

Viewing Times:

Mon 8 Apr

15:00-15:30

Wed 10 Apr

15:00-15:30

Mon 15 Apr

15:00-15:30

Tue 16 Apr

15:00-15:30

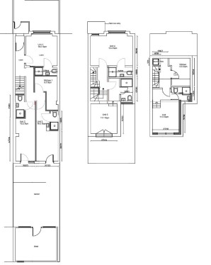
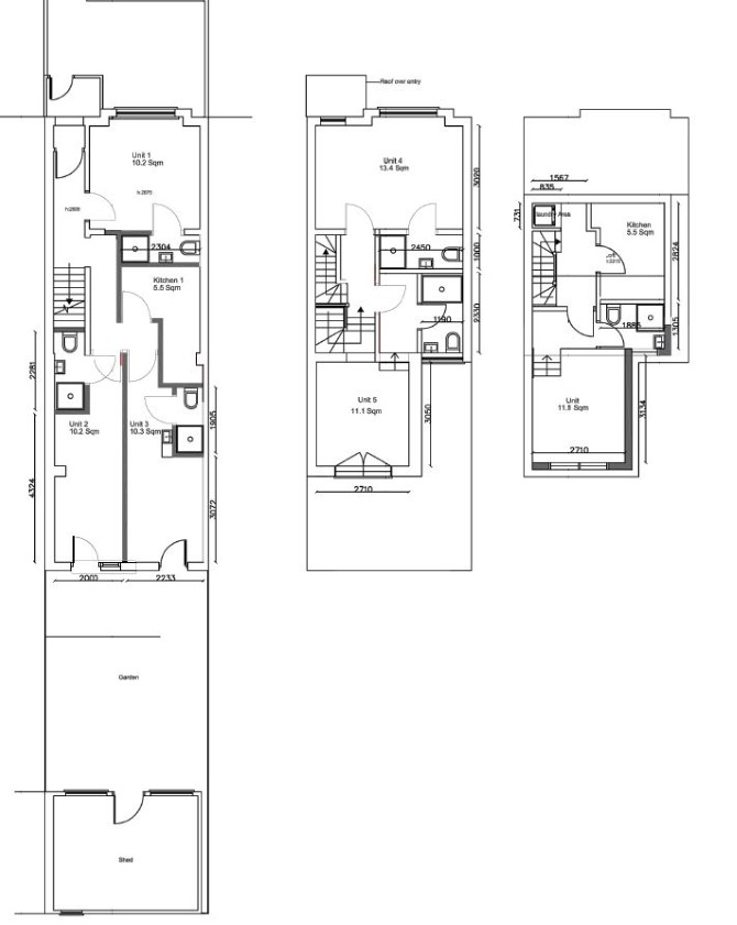
A Six Bedroom Mid Terrace HMO Fully Let Producing £74,500 Per Annum (Potential to Increase)

The property comprises a six bedroom mid terrace HMO arranged over ground and two upper floors. The property has been recently refurbished.

Tenure

Freehold

Location

The property is situated on a residential road close to local shops and amenities. The open spaces of Southall Recreation Ground are within easy reach. Transport links are provided by Southall rail station.

Accommodation

Ground Floor Three Bedrooms (All with En-Suites) Communal Kitchen First Floor Two Bedrooms (Both with En-Suites) Second Floor Large Bedroom (with En-Suite) Communal Kitchen

Exterior

The property benefits from a rear garden which two of the units have access to.

Tenancy

The property is subject to individual tenancies at a combined rent of £66,000 per annum. Please refer to the legal pack for further information.

The property has not been inspected by Auction House London. All information has been supplied by the vendor.

EPC Rating

Flat 1 - D Flat 2 - C Flat 3 - C Flat 4 - D Flat 5 - C Flat 6 - D

Services

Interested parties are requested to make their own enquiries to the relevant authorities as to the availability of services.

Important Notice to Prospective Buyers:

We draw your attention to the Special Conditions of Sale within the Legal Pack, referring to other charges in addition to the purchase price which may become payable. Such costs may include Search Fees, reimbursement of Sellers costs and Legal Fees, and Transfer Fees amongst others.

Additional Fees

Administration Charge - Purchasers will be required to pay an administration fee of £1,800 inc VAT

Disbursements - Please see the legal pack for any disbursements listed that may become payable by the purchaser on completion.

View Larger Map

Disclaimer: The map preview provided above is for general guidance only and may not accurately reflect the exact location or surrounding buildings. Prospective buyers and interested parties are strongly advised to independently verify the precise location and surroundings before bidding.