For Sale By Auction | 9:30, 21 May 2024 | Lot 4

142 New Barn Street, Plaistow, London, E13 8JW

Sold £165,000

  • Flat
  • 2 Bedrooms
  • Tenure: Leasehold. The property is held on a 99 year lease from 25th December 1973 (thus approximately 48 years unexpired). A section 42 notice to extend the lease has been served on the freeholder, the rights of which will be assigned to the incoming buyer.

Call the team on 020 7625 9007 for more information

Auction Date

Tue 21/05/2024

Auction Time

9:30

Auction Venue

Live Stream

Viewing Times:

Tue 7 May

11:15-11:45

Thu 9 May

11:15-11:45

Mon 13 May

11:15-11:45

Wed 15 May

11:15-11:45

Fri 17 May

11:15-11:45

Sat 18 May

10:00-10:30

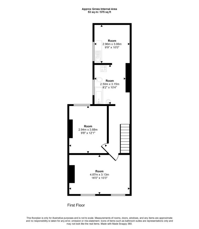
A Vacant First Floor Three Room Flat

The property comprises a first floor three room flat situated within a mid terrace building arranged over the ground and first floors. The property requires a full program of refurbishment.

Tenure

Leasehold. The property is held on a 99 year lease from 25th December 1973 (thus approximately 48 years unexpired). A section 42 notice to extend the lease has been served on the freeholder, the rights of which will be assigned to the incoming buyer.

Location

The property is situated on a residential road close to local shops and amenities. The open spaces of Plastow Park are within easy reach. Transport links are provided by Canning Town underground station (Jubilee line) and West Ham rail station.

Accommodation

First Floor Three Rooms Bathroom

Exterior

The property benefits from direct access to a rear garden.

Further Information

When purchasing a flat that has a short lease, it is important to understand that in addition to the purchase price, if you wish to extend the lease to 90+ years, you will need to pay a premium to the freeholder. This is done by way of serving a Section 42 notice to the freeholder requesting a lease extension with a suggested price for the extension. The freeholder has the right to refuse the offer and submit a counter notice with their suggested price. In most cases, the leaseholder must have owned the property for at least 2 years in order to serve a S42 notice. If you do not fully understand this process, please ask the auctioneers or a solicitor.

Services

Interested parties are requested to make their own enquiries to the relevant authorities as to the availability of services.

Important Notice to Prospective Buyers:

We draw your attention to the Special Conditions of Sale within the Legal Pack, referring to other charges in addition to the purchase price which may become payable. Such costs may include Search Fees, reimbursement of Sellers costs and Legal Fees, and Transfer Fees amongst others.

Additional Fees

Administration Charge - Purchasers will be required to pay an administration fee of £1,800 inc VAT

Disbursements - Please see the legal pack for any disbursements listed that may become payable by the purchaser on completion.

View Larger Map

Disclaimer: The map preview provided above is for general guidance only and may not accurately reflect the exact location or surrounding buildings. Prospective buyers and interested parties are strongly advised to independently verify the precise location and surroundings before bidding.