Withdrawn | Lot 58

287 City Road, Islington, London, EC1V 1LA

Withdrawn

  • Mixed Use
  • 2 Bedrooms
  • Tenure: Freehold. The flats will be sold off on new 999 year leases.

Call the team on 020 7625 9007 for more information

Auction Date

Tue 21/05/2024

Auction Time

9:30

Auction Venue

Live Stream

Viewing Times:

Mon 13 May

10:00-10:30

Wed 15 May

10:00-10:30

Fri 17 May

10:00-10:30

Sat 18 May

13:45-14:15

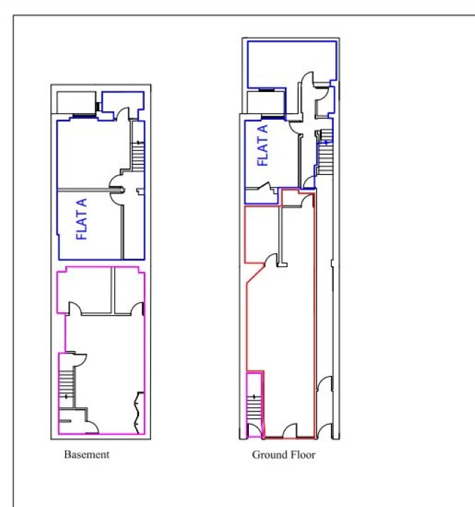
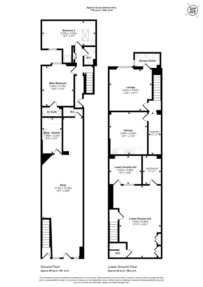
A Mid Terrace Building Arranged to Provide a Vacant Lower Ground and Ground Floor Two Bedroom Split Level Flat, a Vacant Lower Ground and Ground Floor Retail Unit and Ground Rents on the First, Second and Third Floors.

The property comprises a mid terrace building arranged to provide a lower ground floor two bedroom flat, a lower ground and ground floor retail unit and three self-contained flats on the first, second and third floors.

Tenure

Freehold. The flats will be sold off on new 999 year leases.

Location

The property is situated on a residential road close to local shops and amenities. The open spaces of Graham Street Garden are within easy reach. Transport links are provided by Old Street underground (Northern line) and rail stations.

Accommodation

Lower Ground and Ground Floor Flat Reception Room Kitchen Two Bedrooms Bathroom Lower Ground and Ground Floor Retail Unit First Floor Flat - Sold Off Not Insepected Second Floor Flat - Sold Off Not Insepected Third Floor Flat - Sold Off Not Insepected

Tenancy

The three flats on the upper floors are all sold off on one 999 year lease.

The property has not been inspected by Auction House London. All information has been supplied by the vendor.

Energy Efficiency Rating (EPC)

Current Rating E

Services

Interested parties are requested to make their own enquiries to the relevant authorities as to the availability of services.

Important Notice to Prospective Buyers:

We draw your attention to the Special Conditions of Sale within the Legal Pack, referring to other charges in addition to the purchase price which may become payable. Such costs may include Search Fees, reimbursement of Sellers costs and Legal Fees, and Transfer Fees amongst others.

Additional Fees

Administration Charge - Purchasers will be required to pay an administration fee of £1,800 inc VAT

Disbursements - Please see the legal pack for any disbursements listed that may become payable by the purchaser on completion.

View Larger Map

Disclaimer: The map preview provided above is for general guidance only and may not accurately reflect the exact location or surrounding buildings. Prospective buyers and interested parties are strongly advised to independently verify the precise location and surroundings before bidding.