Withdrawn | Lot 32

Flat 2, 221 Belsize Road, Kilburn, London, NW6 4AA

Withdrawn

  • Flat
  • 5 Bedrooms
  • Tenure: Leasehold. The property is held on a 125 year lease from 1st January 2000 (thus approximately 100 years unexpired).

Call the team on 020 7625 9007 for more information

Auction Date

Tue 21/05/2024

Auction Time

9:30

Auction Venue

Live Stream

Viewing Times:

Thu 16 May

14:00-14:45

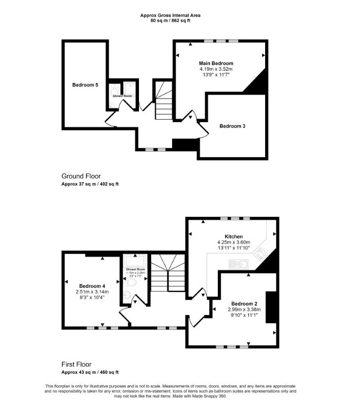
A First and Second Floor Five Bedroom Split Level Flat Being Used as a HMO Fully Let Producing £41,580 Per Annum

The property comprises a first and second floor flat currently arranged as a five bedroom house in multiple occupation (HMO - with a temporary exemption notice in place) situated within an end of terrace building arranged over ground and two upper floors.

Tenure

Leasehold. The property is held on a 125 year lease from 1st January 2000 (thus approximately 100 years unexpired).

Location

The property is situated on a residential road close to local shops and amenities. The open spaces of Kilburn Grange Park are within easy reach. Transport links are provided by Kilburn Park underground (Bakerloo line) and Kilburn High Road (overground).

Accommodation

First Floor Three Bedrooms Bathroom Second Floor Two Bedrooms Kitchen Bathroom

Tenancy

The property is subject to individual HMO Tenancies for an all inclusive rent of £693 per room. Please refer to the legal pack for more information.

Energy Efficiency Rating (EPC)

Current Rating D

Services

Interested parties are requested to make their own enquiries to the relevant authorities as to the availability of services.

Important Notice to Prospective Buyers:

We draw your attention to the Special Conditions of Sale within the Legal Pack, referring to other charges in addition to the purchase price which may become payable. Such costs may include Search Fees, reimbursement of Sellers costs and Legal Fees, and Transfer Fees amongst others.

Additional Fees

Administration Charge - Purchasers will be required to pay an administration fee of £1,800 inc VAT

Disbursements - Please see the legal pack for any disbursements listed that may become payable by the purchaser on completion.

View Larger Map

Disclaimer: The map preview provided above is for general guidance only and may not accurately reflect the exact location or surrounding buildings. Prospective buyers and interested parties are strongly advised to independently verify the precise location and surroundings before bidding.