For Sale By Auction | 08:45, 26 June 2024 | Lot 42A

15A, 17 & 19 West Wycombe Road & 1-9 Wye River Studios, High Wycombe, Buckinghamshire, HP11 2LQ

*Guide | £2,300,000+ (plus fees)

  • Block of Apartments
  • 13 Bedrooms
  • Tenure: Freehold

Call the team on 020 7625 9007 for more information

Auction Date

Wed 26/06/2024

Auction Time

08:45

Auction Venue

Live Stream

Viewing Times:

Sat 15 Jun

10:00-10:30

Wed 19 Jun

12:00-13:00

Sat 22 Jun

12:00-13:00

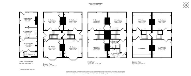
A Substantial Freehold Site Measuring Approximately 875 sq m (9,418 sq ft) Consisting of 2 x Vacant Semi-Detached Four-Storey Buildings, 1 x Vacant Three-Storey Building and a Block of 9 x Self-Contained Flats (5 x One Bed, 4 x Two Bed) each Let Producing a Combined Rent of £109,800 Per Annum. Potential for Re-development (Subject to Obtaining all Relevant Consents).

The Lot comprises 2 x Semi-Detached Four-Storey Buildings both each with self-contained ground floor flats, a three storey commercial building, these properties requires a program of refurbishment. To the rear of the site a detached three-storey block of 9 x self-contained flats (5 x one beds, 4 x two beds). The total area of the site measures approximately 875 sq m (9,418 sq ft). Plans have been drawn up for the conversion of the existing buildings to provide 30 x self-contained flats. No planning application has been submitted for this scheme. Drawings of the proposed plans are available for inspection. Auction House London make no representations or warranties with regard to this scheme and/or the validity of the aforementioned plans. Buyers must rely on their own enquiries with regard to any development potential, permissions required and any previous planning history in respect of this site.

Tenure

Freehold

Location

The property is situated on a residential road in the town centre, close to all shops and amenities. The open spaces of Hughenden Park are within easy reach. Transport links are provided by High Wycombe rail station.

Accommodation

15A West Wycombe Road Lower Ground Floor Basement Ground Floor Ancillary Space First Floor Ancillary Space 17 West Wycombe Road Ground Floor One Bed Flat First Floor Ancillary Space Second Floor Ancillary Space Third Floor Ancillary Space 19 West Wycombe Road Ground Floor One Bed Flat First Floor Ancillary Space Second Floor Ancillary Space Third Floor Ancillary Space Wye River Studios Ground Floor Three Flats (1 x One Bed, 2 x Two Bed) First Floor Three Flats (2 x One Bed, 1 x Two Bed) Second Floor Three Flats (2 x One Bed, 1 x Two Bed)

Tenancy

The nine flats at Wye River Studios are subject to individual tenancies at a combined rent of £109,800 per annum. Please refer to the legal pack for further details.

Services

Interested parties are requested to make their own enquiries to the relevant authorities as to the availability of services.

Important Notice to Prospective Buyers:

We draw your attention to the Special Conditions of Sale within the Legal Pack, referring to other charges in addition to the purchase price which may become payable. Such costs may include Search Fees, reimbursement of Sellers costs and Legal Fees, and Transfer Fees amongst others.

Additional Fees

Administration Charge - Purchasers will be required to pay an administration fee of £1,800 inc VAT

Disbursements - Please see the legal pack for any disbursements listed that may become payable by the purchaser on completion.

View Larger Map

Disclaimer: The map preview provided above is for general guidance only and may not accurately reflect the exact location or surrounding buildings. Prospective buyers and interested parties are strongly advised to independently verify the precise location and surroundings before bidding.