For Sale By Auction | 08:45, 26 June 2024 | Lot 31

1 Tallents Crescent, Harpenden, Hertfordshire, AL5 5BP

*Guide | £325,000+ (plus fees)

  • Semi-Detached House
  • 3 Bedrooms
  • Tenure: Freehold

Call the team on 020 7625 9007 for more information

Auction Date

Wed 26/06/2024

Auction Time

08:45

Auction Venue

Live Stream

Viewing Times:

Thu 13 Jun

12:45-13:15

Sat 15 Jun

12:00-12:30

Mon 17 Jun

12:45-13:15

Wed 19 Jun

12:45-13:15

Fri 21 Jun

12:45-13:15

Tue 25 Jun

12:45-13:15

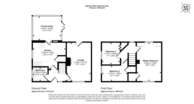
A Vacant Three Bedroom Semi Detached House Situated on a Plot of Land Measuring Approximately 327 sq m (3,519 sq ft)

The property comprises a three bedroom semi detached house arranged over ground and first floors situated on a plot of land measuring approximately 327 sq m (3,519 sq ft). Plans have been drawn up for the erection of an additional house to the side. No planning application has been submitted for this scheme. Drawings of the proposed plans are available for inspection. Auction House London make no representations or warranties with regard to this scheme and/or the validity of the aforementioned plans. Buyers must rely on their own enquiries with regard to any development potential, permissions required and any previous planning history in respect of this site.

Tenure

Freehold

Location

The property is situated on a residential road close to local shops and amenities. The open spaces of Lydekker Park are within easy reach. Transport links are provided by Harpenden rail station.

Accommodation

Ground Floor Reception Room Kitchen Bathroom Conservatory First Floor Three Bedrooms

Exterior

The property benefits from both front and rear gardens.

Energy Efficiency Rating (EPC)

Current Rating D

Services

Interested parties are requested to make their own enquiries to the relevant authorities as to the availability of services.

Important Notice to Prospective Buyers:

We draw your attention to the Special Conditions of Sale within the Legal Pack, referring to other charges in addition to the purchase price which may become payable. Such costs may include Search Fees, reimbursement of Sellers costs and Legal Fees, and Transfer Fees amongst others.

Additional Fees

Administration Charge - Purchasers will be required to pay an administration fee of £1,800 inc VAT

Disbursements - Please see the legal pack for any disbursements listed that may become payable by the purchaser on completion.

View Larger Map

Disclaimer: The map preview provided above is for general guidance only and may not accurately reflect the exact location or surrounding buildings. Prospective buyers and interested parties are strongly advised to independently verify the precise location and surroundings before bidding.