For Sale By Auction | 08:45, 26 June 2024 | Lot 52

18 Yorkshire Street, Blackpool, Lancashire, FY1 5BG

*Guide | £30,000+ (plus fees)

  • Terraced House
  • 14 Bedrooms
  • Tenure: Freehold

Call the team on 020 7625 9007 for more information

Auction Date

Wed 26/06/2024

Auction Time

08:45

Auction Venue

Live Stream

Viewing Times:

Wed 12 Jun

11:00-11:30

Sat 15 Jun

11:00-11:30

Tue 18 Jun

11:00-11:30

Thu 20 Jun

11:00-11:30

Tue 25 Jun

11:00-11:30

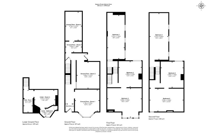
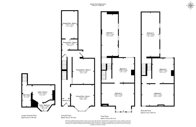
A Vacant Fourteen Bedroom Mid Terrace Former Hotel

The property comprises a fourteen bedroom mid terrace former hotel arranged over ground and two upper floors.

Tenure

Freehold

Location

The property is situated on a residential road close to local shops and amenities. The open spaces of Revoe Park Playground are within easy reach. Transport links are provided by Blackpool South rail station.

Accommodation

Ground Floor Two Reception Rooms Kitchen Utility Room WC First Floor Seven Bedrooms Two Bathrooms Separate WC Second Floor Seven Bedrooms Two Bathrooms Separate WC

Services

Interested parties are requested to make their own enquiries to the relevant authorities as to the availability of services.

Important Notice to Prospective Buyers:

We draw your attention to the Special Conditions of Sale within the Legal Pack, referring to other charges in addition to the purchase price which may become payable. Such costs may include Search Fees, reimbursement of Sellers costs and Legal Fees, and Transfer Fees amongst others.

Additional Fees

Administration Charge - Purchasers will be required to pay an administration fee of £1,800 inc VAT

Disbursements - Please see the legal pack for any disbursements listed that may become payable by the purchaser on completion.

View Larger Map

Disclaimer: The map preview provided above is for general guidance only and may not accurately reflect the exact location or surrounding buildings. Prospective buyers and interested parties are strongly advised to independently verify the precise location and surroundings before bidding.