For Sale By Auction | 08:45, 26 June 2024 | Lot 113

39 Fane Drive, Berinsfield, Wallingford, Oxfordshire, OX10 7NE

*Guide | £95,000+ (plus fees)

  • Terraced House
  • 2 Bedrooms
  • Tenure: Freehold

Call the team on 020 7625 9007 for more information

Auction Date

Wed 26/06/2024

Auction Time

08:45

Auction Venue

Live Stream

Viewing Times:

Thu 13 Jun

14:00-14:30

Tue 18 Jun

14:00-14:30

Thu 20 Jun

14:00-14:30

Tue 25 Jun

14:00-14:30

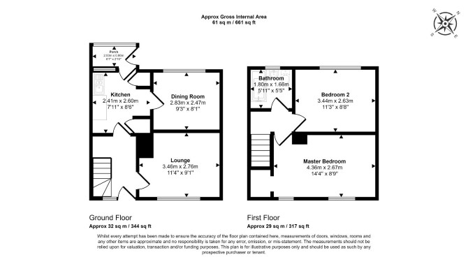
A Vacant Two Bedroom Mid Terrace House

The property comprises a two bedroom mid terrace house arranged over ground and first floors.

Tenure

Freehold

Location

The property is situated on a residential road close to local shops and amenities. The open spaces of Berinsfield Recreation Ground are within easy reach. Transport links are provided by Culham rail station.

Accommodation

Ground Floor Two Reception Rooms Kitchen First Floor Two Bedrooms Bathroom

Exterior

The property benefits from both front and rear gardens.

Energy Efficiency Rating (EPC)

Current Rating F

Services

Interested parties are requested to make their own enquiries to the relevant authorities as to the availability of services.

Important Notice to Prospective Buyers:

We draw your attention to the Special Conditions of Sale within the Legal Pack, referring to other charges in addition to the purchase price which may become payable. Such costs may include Search Fees, reimbursement of Sellers costs and Legal Fees, and Transfer Fees amongst others.

Additional Fees

Administration Charge - Purchasers will be required to pay an administration fee of £1,800 inc VAT

Disbursements - Please see the legal pack for any disbursements listed that may become payable by the purchaser on completion.

View Larger Map

Disclaimer: The map preview provided above is for general guidance only and may not accurately reflect the exact location or surrounding buildings. Prospective buyers and interested parties are strongly advised to independently verify the precise location and surroundings before bidding.