For Sale By Auction | 08:45, 26 June 2024 | Lot 53A

Flat 149 Trinity Square, 23-59 Staines Road, Hounslow, Middlesex, TW3 3GE

*Guide | £165,000+ (plus fees)

  • Flat
  • 1 Bedroom
  • Tenure: Long Leasehold. The property is held on a 950 year lease from 1st January 2016 (thus approximately 944 years unexpired).

Call the team on 020 7625 9007 for more information

Auction Date

Wed 26/06/2024

Auction Time

08:45

Auction Venue

Live Stream

Viewing Times:

Wed 19 Jun

12:15-12:45

Fri 21 Jun

12:15-12:45

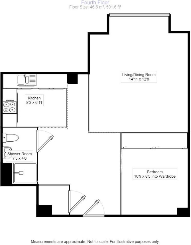
A Fourth Floor One Bedroom Flat Subject to an Assured Shorthold Tenancy Producing £18,600 Per Annum

The property comprises a fourth floor one bedroom flat situated within a purpose built building arranged over ground and four upper floors.

Tenure

Long Leasehold. The property is held on a 950 year lease from 1st January 2016 (thus approximately 944 years unexpired).

Location

The property is situated on a predominantly residential road in Hounslow close to local shops and amenities. The open spaces of Inwood Park and Murray Park are within easy reach. Transport links are provided by Hounslow rail station.

Accommodation

Fourth Floor Open Plan Reception/Kitchen Bedroom Shower Room

Exterior

The property benefits from an allocated underground parking bay.

Tenancy

The property is subject to an Assured Shorthold Tenancy at a rent of £1,550 per calendar month. The current Tenancy is excluding the parking space which was previously being let separately achieving £120 per calendar month (£1,440 per annum).

Energy Efficiency Rating (EPC)

Current Rating C

Services

Interested parties are requested to make their own enquiries to the relevant authorities as to the availability of services.

Important Notice to Prospective Buyers:

We draw your attention to the Special Conditions of Sale within the Legal Pack, referring to other charges in addition to the purchase price which may become payable. Such costs may include Search Fees, reimbursement of Sellers costs and Legal Fees, and Transfer Fees amongst others.

Additional Fees

Administration Charge - Purchasers will be required to pay an administration fee of £1,800 inc VAT

Disbursements - Please see the legal pack for any disbursements listed that may become payable by the purchaser on completion.

View Larger Map

Disclaimer: The map preview provided above is for general guidance only and may not accurately reflect the exact location or surrounding buildings. Prospective buyers and interested parties are strongly advised to independently verify the precise location and surroundings before bidding.