Withdrawn | Lot 139

249A Ferry Road, Hullbridge, Hockley, Essex, SS5 6NA

Withdrawn

  • Flat
  • 2 Bedrooms
  • Tenure: Leasehold. The property is held on a 150 year lease from 25th December 2023 (thus approximately 150 years unexpired).

Call the team on 020 7625 9007 for more information

Auction Date

Wed 31/07/2024

Auction Time

09:30

Auction Venue

Live Stream

Viewing Times:

Sat 20 Jul

12:00-12:30

Tue 23 Jul

12:00-12:30

Thu 25 Jul

12:00-12:30

Sat 27 Jul

12:00-12:30

Tue 30 Jul

12:00-12:30

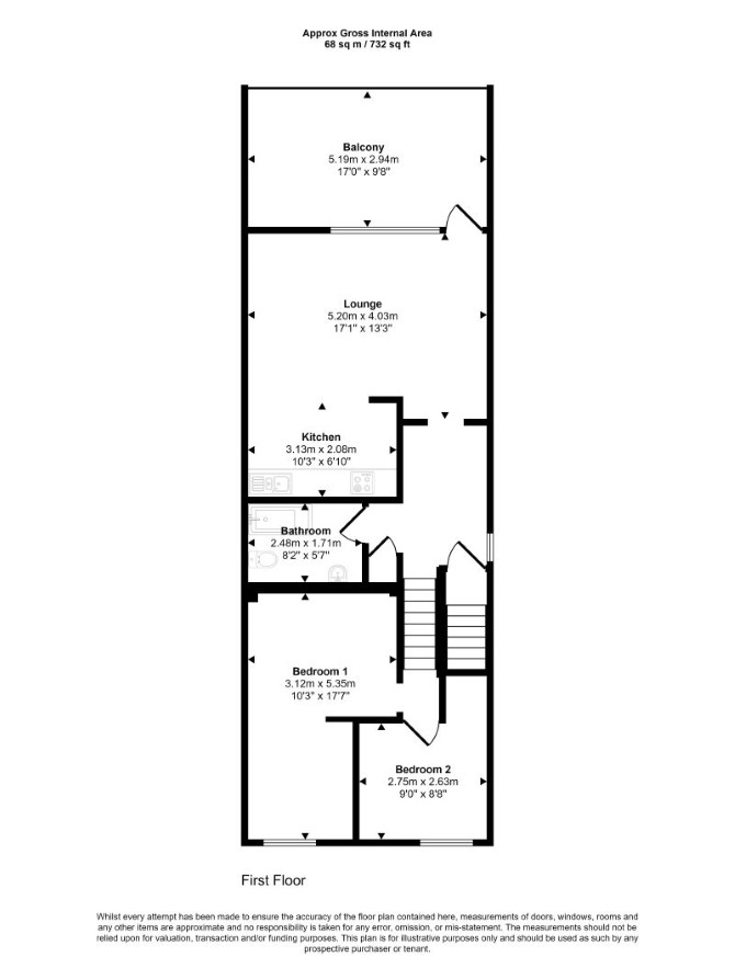
A Vacant First and Second Floor Two Bedroom Split-Level Maisonette

The property comprises a first and second floor two bedroom split-level maisonette situated within an end of terrace building arranged over ground and two upper floors.

Tenure

Leasehold. The property is held on a 150 year lease from 25th December 2023 (thus approximately 150 years unexpired).

Location

The property is situated on a residential road close to local shops and amenities. The open spaces of Kendal Park are within easy reach. Transport links are provided by Rayleigh rail station.

Accommodation

First Floor Reception Room with Open-Plan Kitchen Bathroom Second Floor Two Bedrooms

Exterior

The property benefits from a private balcony.

Energy Efficiency Rating (EPC)

Current Rating E

Services

Interested parties are requested to make their own enquiries to the relevant authorities as to the availability of services.

Important Notice to Prospective Buyers:

We draw your attention to the Special Conditions of Sale within the Legal Pack, referring to other charges in addition to the purchase price which may become payable. Such costs may include Search Fees, reimbursement of Sellers costs and Legal Fees, and Transfer Fees amongst others.

Additional Fees

Administration Charge - Purchasers will be required to pay an administration fee of £1,800 inc VAT

Disbursements - Please see the legal pack for any disbursements listed that may become payable by the purchaser on completion.

View Larger Map

Disclaimer: The map preview provided above is for general guidance only and may not accurately reflect the exact location or surrounding buildings. Prospective buyers and interested parties are strongly advised to independently verify the precise location and surroundings before bidding.