For Sale By Auction | 09:30, 11 September 2024 | Lot 62

1 Wellesley Road, Clacton-on-Sea, Essex, CO15 3PP

Sold £605,000

  • Detached House
  • 35 Bedrooms
  • Tenure: Freehold

Call the team on 020 7625 9007 for more information

Auction Date

Wed 11/09/2024

Auction Time

09:30

Auction Venue

Live Stream

Viewing Times:

Tue 3 Sep

17:30-18:00

Thu 5 Sep

17:30-18:00

Sat 7 Sep

12:30-13:00

Tue 10 Sep

17:00-17:30

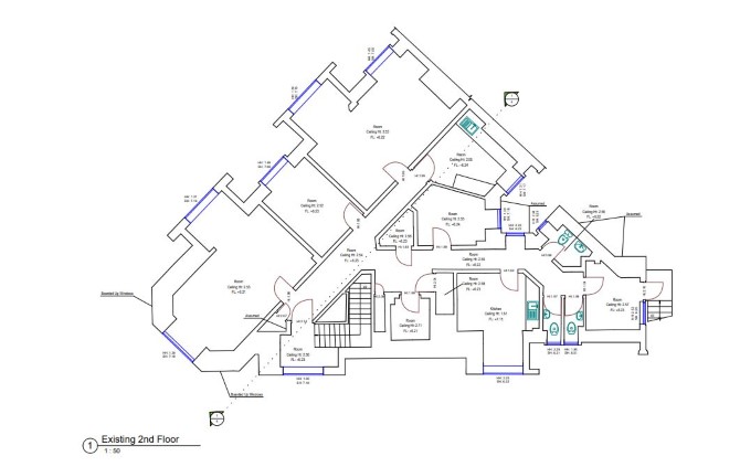
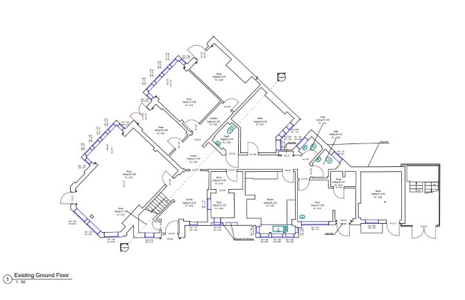
A Vacant Thirty Five Room Detached Building. Estimated Rental Value If Let at the Draft Lease is £144,000 Per Annum (Reflecting a Gross Initial Yield of 27%)

The property comprises a thirty five room detached building arranged over ground and two upper floors.

Tenure

Freehold

Location

The property is situated on a residential road close to local shops and amenities. The open spaces of Clacton Pavilion and Clacton Pier are within easy reach. Transport links are provided by Clacton-on-Sea rail station.

Accommodation

Ground Floor Kitchen Eleven Rooms Three WC's First Floor Fourteen Rooms Three WC's Second Floor Kitchen Ten Rooms Three WC's

Exterior

The property benefits from off street parking.

Tenancy

The building is currently vacant, however there is a draft lease in place with a management company to let the entire building at a rent of £144,000 per annum. Please refer to the legal pack for a copy of the draft lease.

Energy Efficiency Rating (EPC)

Current Rating C

Services

Interested parties are requested to make their own enquiries to the relevant authorities as to the availability of services.

Important Notice to Prospective Buyers:

We draw your attention to the Special Conditions of Sale within the Legal Pack, referring to other charges in addition to the purchase price which may become payable. Such costs may include Search Fees, reimbursement of Sellers costs and Legal Fees, and Transfer Fees amongst others.

Additional Fees

Administration Charge - Purchasers will be required to pay an administration fee of £1,800 inc VAT

Disbursements - Please see the legal pack for any disbursements listed that may become payable by the purchaser on completion.

View Larger Map

Disclaimer: The map preview provided above is for general guidance only and may not accurately reflect the exact location or surrounding buildings. Prospective buyers and interested parties are strongly advised to independently verify the precise location and surroundings before bidding.