For Sale By Auction | 10:00, 12 September 2024 | Lot 173

424A Sutton Road, Southend-on-Sea, Essex, SS2 5EZ

*Guide | £90,000+ (plus fees)

  • Flat
  • 1 Bedroom
  • Tenure: Leasehold. The property is held on a 99 year lease from 1st January 2007 (thus approximately 81 years unexpired).

Call the team on 020 7625 9007 for more information

Auction Date

Thu 12/09/2024

Auction Time

10:00

Auction Venue

Live Stream

Viewing Times:

Thu 29 Aug

12:00-12:30

Sat 31 Aug

12:00-12:30

Tue 3 Sep

12:00-12:30

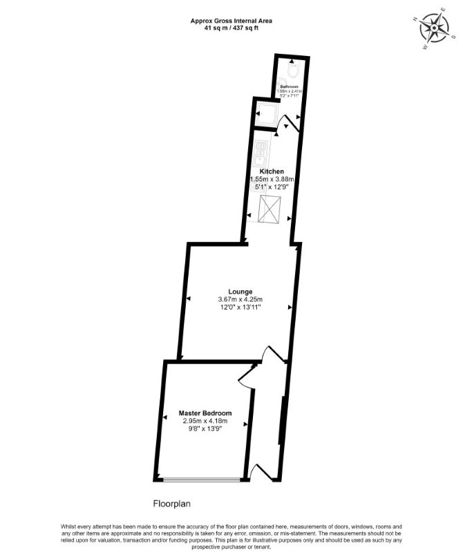
A Ground Floor One Bedroom Flat Offered With Vacant Possession

The property comprises a ground floor one bedroom flat situated within a mid-terrace building arranged over ground and first floors.

Tenure

Leasehold. The property is held on a 99 year lease from 1st January 2007 (thus approximately 81 years unexpired).

Location

The property is situated on a residential road in Southend-on-Sea close to local shops and amenities. The open spaces of Priory Park are within easy reach. Transport links are provided by Prittlewell rail station.

Accommodation

Ground Floor Reception Room Kitchen Bedroom Shower Room

Energy Efficiency Rating (EPC)

Current Rating C

Services

Interested parties are requested to make their own enquiries to the relevant authorities as to the availability of services.

Important Notice to Prospective Buyers:

We draw your attention to the Special Conditions of Sale within the Legal Pack, referring to other charges in addition to the purchase price which may become payable. Such costs may include Search Fees, reimbursement of Sellers costs and Legal Fees, and Transfer Fees amongst others.

Additional Fees

Administration Charge - Purchasers will be required to pay an administration fee of £1,800 inc VAT

Disbursements - Please see the legal pack for any disbursements listed that may become payable by the purchaser on completion.

View Larger Map

Disclaimer: The map preview provided above is for general guidance only and may not accurately reflect the exact location or surrounding buildings. Prospective buyers and interested parties are strongly advised to independently verify the precise location and surroundings before bidding.