For Sale By Auction | 10:00, 12 September 2024 | Lot 185A

37 & 37A Cricklade Road, Swindon, Wiltshire, SN2 1AA

Sold £145,000

  • Retail Property (high street)
  • 1 Bedroom
  • Tenure: Freehold

Call the team on 020 7625 9007 for more information

Auction Date

Thu 12/09/2024

Auction Time

10:00

Auction Venue

Live Stream

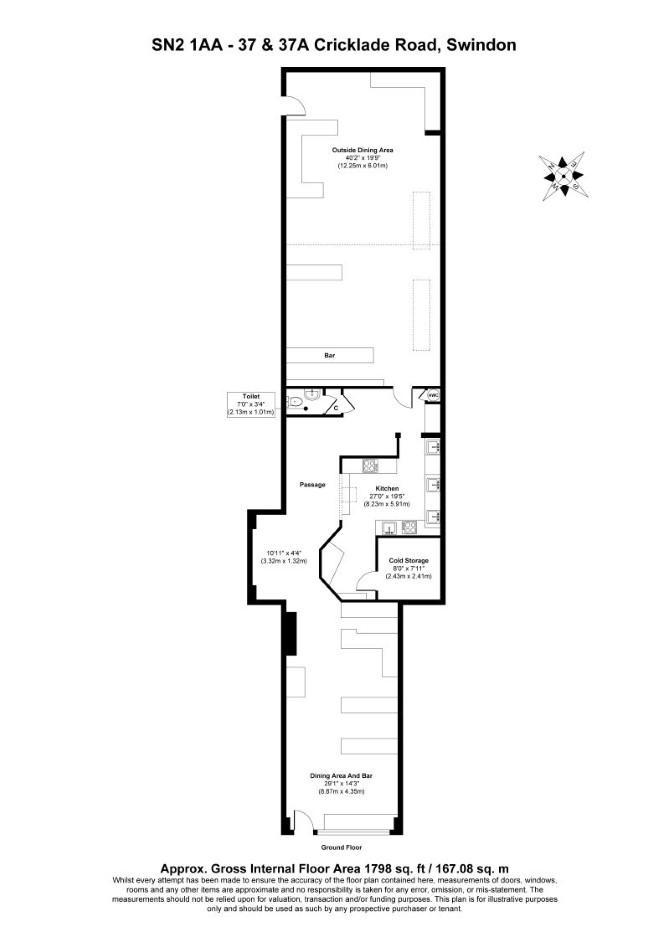
A Mid Terrace Building Arranged to Provide a Ground Floor Shop and a First Floor One Bedroom Flat Fully Let Producing a Combined £20,676 Per Annum

The property comprises a mid terrace building arranged to provide a ground floor shop and a first floor one bedroom flat.

Tenure

Freehold

Location

The property is situated on a mixed use road close to local shops and amenities. The open spaces of St Marks Recreation Ground are within easy reach. Transport links are provided by Swindon rail station.

Accommodation

Ground Floor Retail Area WC First Floor Reception Room Kitchen Bedroom Bathroom

Tenancy

The shop is subject to a lease or a term of 3 years commencing 1st February 2024 at a rent of £1,050 per calendar month. The flat is subject to an Assured Shorthold Tenancy at a rent of £673 per calendar month.

EPC Rating

37 - E 37A - D

Services

Interested parties are requested to make their own enquiries to the relevant authorities as to the availability of services.

Important Notice to Prospective Buyers:

We draw your attention to the Special Conditions of Sale within the Legal Pack, referring to other charges in addition to the purchase price which may become payable. Such costs may include Search Fees, reimbursement of Sellers costs and Legal Fees, and Transfer Fees amongst others.

Additional Fees

Administration Charge - Purchasers will be required to pay an administration fee of £1,800 inc VAT

Disbursements - Please see the legal pack for any disbursements listed that may become payable by the purchaser on completion.

View Larger Map

Disclaimer: The map preview provided above is for general guidance only and may not accurately reflect the exact location or surrounding buildings. Prospective buyers and interested parties are strongly advised to independently verify the precise location and surroundings before bidding.