For Sale By Auction | 10:00, 16 October 2024 | Lot 192

87 Sandhurst Avenue, Birmingham, West Midlands, B36 8EH

Sold £312,000

  • Semi-Detached House
  • 3 Bedrooms
  • Tenure: Freehold

Call the team on 020 7625 9007 for more information

Auction Date

Wed 16/10/2024

Auction Time

10:00

Auction Venue

Live Stream

Viewing Times:

Tue 8 Oct

10:00-10:30

Thu 10 Oct

12:00-12:30

Sat 12 Oct

10:00-10:30

Mon 14 Oct

12:00-12:30

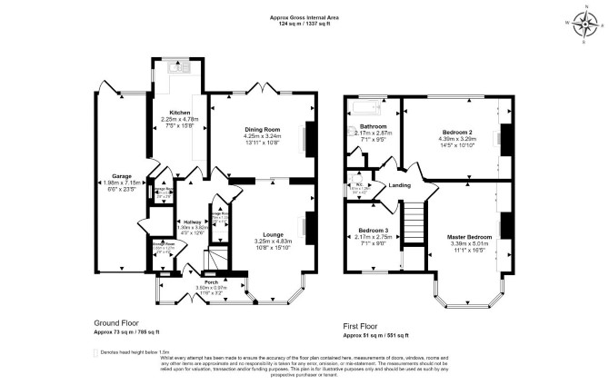
A Vacant Three Bedroom Linked Detached House

The property comprises a three bedroom linked detached house arranged over ground and first floors. The property requires a program of refurbishment.

Tenure

Freehold

By Order of the Executors

Location

The property is situated on a residential road close to local shops and amenities. The open spaces of Bromford Lane Open Space are within easy reach. Transport links are provided by Aston rail station.

Accommodation

Ground Floor Two Reception Rooms Kitchen Storeroom First Floor Three Bedrooms Bathroom Separate WC

Exterior

The property benefits from both front and rear gardens, a garage and off street parking.

Services

Interested parties are requested to make their own enquiries to the relevant authorities as to the availability of services.

Important Notice to Prospective Buyers:

We draw your attention to the Special Conditions of Sale within the Legal Pack, referring to other charges in addition to the purchase price which may become payable. Such costs may include Search Fees, reimbursement of Sellers costs and Legal Fees, and Transfer Fees amongst others.

Additional Fees

Administration Charge - Purchasers will be required to pay an administration fee of £1,800 inc VAT

Disbursements - Please see the legal pack for any disbursements listed that may become payable by the purchaser on completion.

View Larger Map

Disclaimer: The map preview provided above is for general guidance only and may not accurately reflect the exact location or surrounding buildings. Prospective buyers and interested parties are strongly advised to independently verify the precise location and surroundings before bidding.