Sold Prior | Lot 273

37 Clarendon Road, Walthamstow, London, E17 9AY

Sold Prior

  • Detached House
  • 6 Bedrooms
  • Tenure: Freehold

Call the team on 020 7625 9007 for more information

Auction Date

Wed 16/10/2024

Auction Time

10:00

Auction Venue

Live Stream

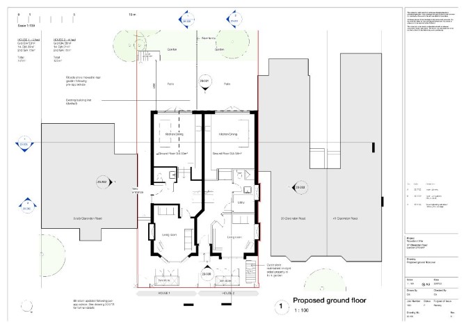
A Vacant Six Bedroom Double-Fronted Detached House. Offered With Planning Permission for Conversion to Two Semi Detached Houses (1 x Three Bedrooms, 1 x Four Bedrooms).

Tenure

Freehold

Location

The property is situated on a residential road close to local shops and amenities. The open spaces of Abbotts Park are within easy reach. Transport links are provided by Walthamstow Central overground and underground stations (Victoria line).

Accommodation

Ground Floor Reception Room Kitchen Office Utility Room Two Bedrooms (Both With En-Suites) Shower Room First Floor Four Bedrooms (All With En-Suites) Second Floor Loft Room with WC

Exterior

The property benefits from a rear garden.

Planning

Waltham Forest Borough Council granted the following planning permission (ref: 232903) on 2nd January 2024 : '6 bedroom dwelling house to 2 No. dwelling houses'.

Services

Interested parties are requested to make their own enquiries to the relevant authorities as to the availability of services.

Important Notice to Prospective Buyers:

We draw your attention to the Special Conditions of Sale within the Legal Pack, referring to other charges in addition to the purchase price which may become payable. Such costs may include Search Fees, reimbursement of Sellers costs and Legal Fees, and Transfer Fees amongst others.

Additional Fees

Administration Charge - Purchasers will be required to pay an administration fee of £1,800 inc VAT

Disbursements - Please see the legal pack for any disbursements listed that may become payable by the purchaser on completion.

View Larger Map

Disclaimer: The map preview provided above is for general guidance only and may not accurately reflect the exact location or surrounding buildings. Prospective buyers and interested parties are strongly advised to independently verify the precise location and surroundings before bidding.